Nowoczesna architektura przemysłowa – Siedziba firmy PETZL w USA Ep. 5z10.
IndustrialDzisiaj kolejny budynek przemysłowy u Pani Dyrektor czyli ciąg dalszy serii ‘Nowoczesne projektowanie obiektów przemysłowych’. U nas przykładów dobrej architektury przemysłowej jest jak na lekarstwo, co nie oznacza, że takiej w ogóle nie ma. Dlatego w kolejnych odcinkach postaram się Wam przybliżyć jakiś przykład z Polski, może ta architektura będzie Wam bliższa? Jak wygląda nowoczesna architektura przemysłowa? Zobaczcie sami ;]
Dzisiaj obiekt zza oceanu, czyli prosto ze Stanów Zjednoczonych:
–
Siedziba firmy PETZL w Utah.
Co to jest budynek przemysłowy?
Jak powinno się taki budynek projektować?
Architektura przemysłowa – co ją wyróżnia?
Jakie są cechy architektury przemysłowej?
Architektura przemysłowa – czy musi być brzydka/nudna?
PytaniaNa te i inne pytania odpowiemy sobie wraz z kolejnymi postami w naszej serii. Zobaczycie sami, że architektura przemysłowa to temat bardzo przyjemny i wdzięczny, trzeba tylko odpowiednio do niego podejść;]
Drogi Inwestorze – zobacz jak wygląda nowoczesna architektura przemysłowa.
Drogi Inspiracjowiczu – po prostu patrz i INSPIRUJ SIĘ! To bardzo bardzo ważne jest! Kto wie, może za kilka lat to TY będziesz INWESTOREM i dzięki inspiracji i Twojej wiedzy na polskim gruncie wybuduje się coś fantastycznego i niepowtarzalnego ;]
Projekt wykonało amerykańskie biuro ajc architects, które swoją siedzibę również ma w Utah. Może właśnie ze względu na zbieżność lokalizacji, projektanci świetnie rozumieli potrzeby Inwestora oraz potencjał i walory kontekstu miejsca, w którym budynek powstał.
PETZL to firma zajmująca się produkcją sprzętu wykorzystywanego we wspinaczkach wysokogórskich oraz pracach na wysokościach. Zaraz zobaczycie, jak projektanci zgrabnie nawiązali do działalności firmy ;] (podobnie zresztą jak w opisywanym przeze mnie wcześniej budynku również z USA – Centrum Dollar General).
Takiej odwagi w podejmowaniu decyzji i luzu w projektowaniu życzę nam wszystkim ;]
Bo, w którym innym budynku powinna się znajdować ścianka wspinaczkowa jak nie w budynku firmy produkującej sprzęt do właśnie takich ścianek?;];] Właśnie! O to chodzi w projektowaniu!
P.S. Ścianka może służyć nie tylko jako miejsce wypróbowania dopiero co wyprodukowanego sprzętu :P, ale również jako miejsce relaksu i aktywnego wypoczynku dla pracowników firmy ;] Kreatywne biuro to również temat ku Inspiracji!
GFRCczyli Glass Fiber Reinforced Concrete to materiał, z którego wykonana jest elewacja całego budynku. Wielowymiarowe, o różnych kształtach płyty w swojej barwie i formie nawiązują bezpośrednio do lokalizacji oraz klimatu i krajobrazu Utah oraz znajdujących się na jego południu piaskowych klifów.
Tak zrozumieć przestrzeń, w której się projektuje może tylko taki architekt, który ma z nią bezpośrednią styczność, który w niej przebywa i umie wyłapać w niej to co najlepsze. Ciekawą elewację opisywałam również w poście o Spalarni w Roskilde – daje niesamowity efekt, zwłaszcza nocą!
Nowoczesna architektura przemysłowa to właśnie taka architektura – projektowana w danym kontekście i wykorzystująca jego potencjał.


Wewnętrzny dziedziniec pełni dwojaką rolę:
- Rozczłonkowana bryła ma lepsze możliwości doświetlenia pomieszczeń wewnątrz budynku.
- Stanowi cenne przedłużenie parteru z możliwością wyjścia na zewnątrz i odpoczynku.
Zieleń w budynku – budynek w zieleni. Tutaj na trochę większą skalę ;]
Główne wejściedo budynku to bardzo istotny element. Architektura przemysłowa, tak jak każda inna architektura użyteczności publicznej, powinna kłaść duży nacisk właśnie na ten aspekt w projektowaniu – czyste, przejrzyste i CIEKAWE rozwiązanie głównego wejścia do budynku.
Jak do tematu podeszli projektanci z ajc architects? Moim zdaniem świetnie ;]
Główne wejście do budynku znajduje się bezpośrednio przy zrealizowanym wewnątrz, przeszklonym pomieszczeniu mieszczącym wspomnianą ściankę wspinaczkową. Czyli rzeczona ścianka jest pierwszym elementem, z którym potencjalny klient/użytkownik ma styczność ;]

LEEDczyli certyfikat świadczący o nowoczesnych, innowacyjnych, energooszczędnych rozwiązaniach wprowadzonych do budynku. Taki właśnie certyfikat, i to w jego najwyższej formie, LEED Platinium, otrzymał budynek firmy PETZL w USA. Jest to budynek nie tylko przyjazny środowisku i otoczeniu, ale również jego pracownikom. W budynku znajduje się bowiem miejsce, gdzie można na czas pracy przyprowadzić swojego czworonoga! A przy nim bezpośrednio wybieg dla zwierzaków! Niesamowite jak proste rozwiązania i chęć zrozumienia potrzeb osób korzystających z budynku potrafią poprawić jego jakość i podnieść komfort użytkowania obiektu;] U nas co prawda takie rozwiązania pozostają jeszcze w sferze marzeń, ale dlatego właśnie warto się inspirować!
Nowoczesna architektura przemysłowa – to architektura pomysłu!
Oprócz tego firma, w celu nakłonienia pracowników do korzystania z alternatywnych i ekologicznych środków transportu, zorganizowała pomieszczenia do przechowywania rowerów. Mało tego, w budynku znajdziemy również serwis rowerowy i sklep z częściami do rowerów, w razie gdyby ktoś złapał gumę lub urwał łańcuch swego jednośladu ;]
Część przemysłowa wygląda tutaj jak każda część przemysłowa ;];] Chcę Wam pokazać, że architektura przemysłowa to nie tylko ta część produkcyjna, której obraz mamy w głowie, ale również wiele innych pomieszczeń, części i stref, które się uzupełniają i są ze sobą kompatybilne ;]
Architektura przemysłowa to zbiór różnych stref, które wzajemnie się przenikają i uzupełniają.
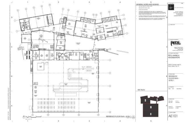
Na koniecjak zwykle galeria dobrych pomysłów, czyli projektowanie od kuchni. Kilka rysunków, które mam nadzieję, zainteresują nie tylko osoby związane z branżą, ale również przyszłych, potencjalnych Inwestorów. Oglądajcie i inspirujcie się, bo nowoczesna architektura przemysłowa to nie tylko świetna realizacja, ale również projekt, według którego powstaje.
PD Architekt pozdrawia z Rzeszowa ;] Ostatni nasz budynek przemysłowy właśnie zaczyna się budować i choć nie jest taki innowacyjny, bo złożony został z hali już istniejącej, jednak dzięki tamtej inwestycji wiem, jak istotna jest świadomość inwestora i projektanta w temacie innowacyjności i kreatywności.





















O wow. Projekt robi wrazenie. Czesto korzystam z produktow tej firmy, nie wiedzialem ze ma tak ladna siedzibe:)