Przebudowa stodoły Ep.16 Wspaniałe stodoły zamienione w domy 7z9

Pamiętacie jeszcze naszą serię o wspaniałych stodołach zamienionych w jeszcze wspanialsze domy jednorodzinne? Bo ja właśnie odkryłam ją na nowo w czeluściach szkiców postów, które kiedyś dla Was przygotowywałam ;] i jestem tym zachwycona! Dlatego postanowiłam, że wrócimy na trochę do tych nietypowych, ale na pewno pięknych realizacji. Dzisiaj chciałam Wam pokazać kolejny niesamowity przykład a w nim? Przebudowa stodoły w dom jednorodzinny!
Zapraszam!
Przebudowa stodoły
-zobacz jak stodoła zamienia się w dom jednorodzinny!


- Za projekt odpowiedzialne jest biuro projektowe SeARCH.
- Budynek zlokalizowany jest w Zupthen, w Holandii.
- Powierzchnia to ok. 500 m2.
- Powstał w 2004 r.



Wnętrze Zobacz jak wygląda wnętrze stodoły zamienionej w dom jednorodzinny – nowoczesne rozwiązania technologiczne i konstrukcyjne mieszają się tutaj z pierwotną zabudową. Również materiałowo zostało to tak zaprojektowane, aby wyróżnić starą, pierwotną część budynku i jego część nowoczesną. Oprócz tego wykorzystanie naturalnych materiałów wykończeniowych jak jasne, niezaimpregnowane drewno i nowoczesnych typu beton czy płyty okładzinowe w kuchni.




Detal Czyli jak ważne jest zastosowanie odpowiednich materiałów i poszanowanie dla elementów, które w tym domu zastano. Niesamowite połączenie oryginalnych elementów stodoły z nowoczesnymi rozwiązaniami np. w szklanym atrium gdzie konstrukcja wykonana jest z litego, nieobrobionego drewna i przekryta szkłem. To się nazywa właśnie projektowanie indywidualne, dopasowane do zastanej sytuacji i potrzeb nie tylko Inwestora, ale w tym wypadku również konkretnego budynku.


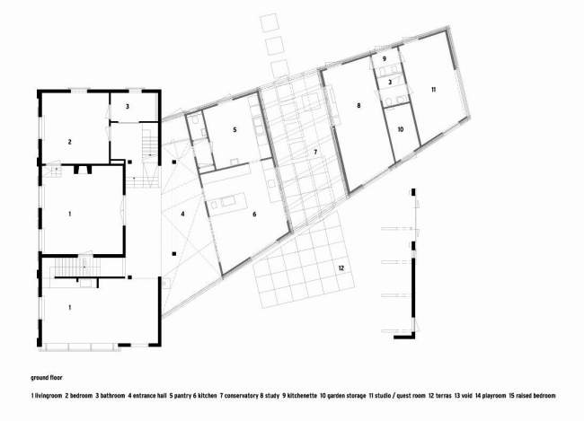
Projektczyli jak wygląda stodoła w 2D – rzuty, elewacje a nawet pierwszy szkic koncepcyjny. Czyli twórcza droga projektowa, która finalnie prowadzi do tak wspaniałych realizacji jakim jest przykład z Holandii.
Mam nadzieję, że podobał Wam się ten mały come back ;] postaram się przygotować dla Was jeszcze kilka podobnych przykładów na przebudowy z różnych stron świata, które łączy jedno – dzięki nadaniu nowej funkcji i gruntownej renowacji DANO IM DRUGIE ŻYCIE i obecnie stanowią architekturę na światowym poziomie!
Po jeszcze więcej inspiracji ze starego na nowe zapraszam już niebawem – tylko u Pani Dyrektor ;]








