Przestronny dom rodzinny z podziałem na strefy dzienną i nocną, doskonały dla rodzin poszukujących komfortu, funkcjonalne rozwiązania, wysokiej jakości plan domu, optymalizacja przestrzeni, PaniDyrektor.pl.
Rzut domu W czasie, gdy rynek projektowania domów zdominował projekt typowy (tak koledzy architekci – sami to sobie zgotowaliśmy) chciałabym przedstawić Wam kilka INNYCH, nienudnych pomysłów na rozwiązanie – czyli jak inaczej może wyglądać rzut domu.
Oczywiście – pomysły pochodzą głównie z USA – dlaczego wybrałam właśnie pomysły zza oceanu?
Przekonaj się sam!
Rzut domu – zobacz nietypowe rozwiązania!
Niewielki parterowy dom – rzut parteru. Ciekawe rozwiązanie to wyjście z kuchni na werandę. (praktyczne!)
Parterowy dom z nieco bardziej “Polskim” rozkładem.
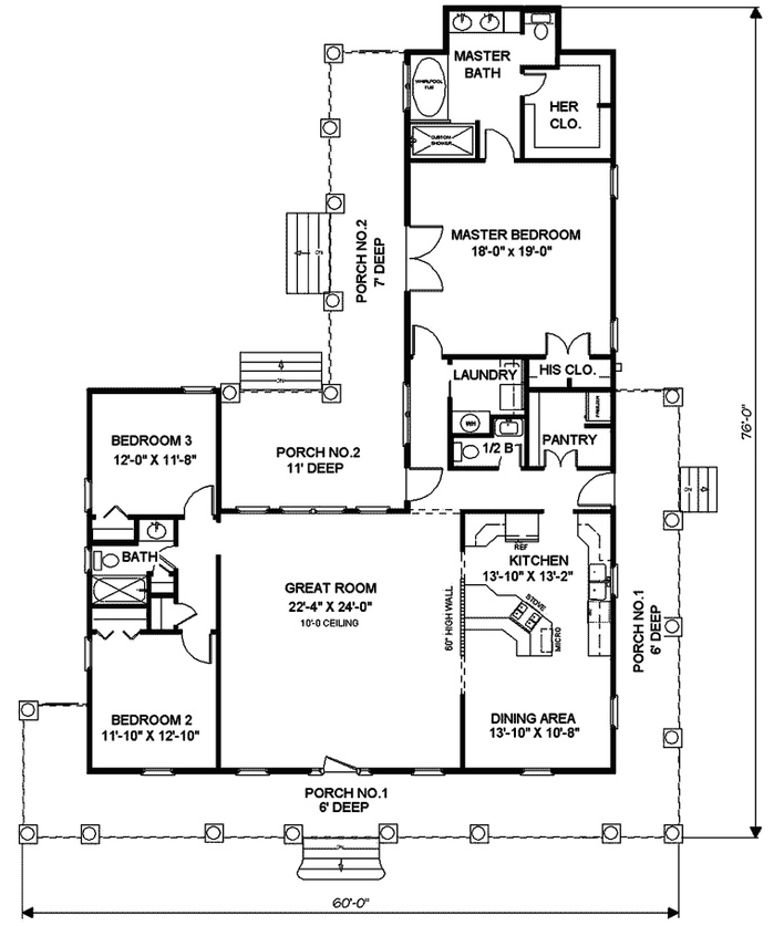
Dwie werandy, duże łazienki, garderoby, przestronna kuchnia; wyjście z kuchni i jadalni na werandy
“A” Rzut parteru większego domu połączonego z garażem i częścią buforową (warsztatową?)
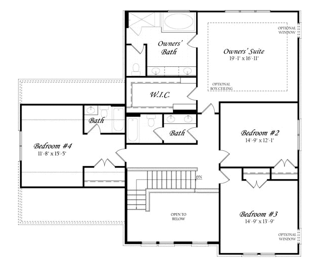
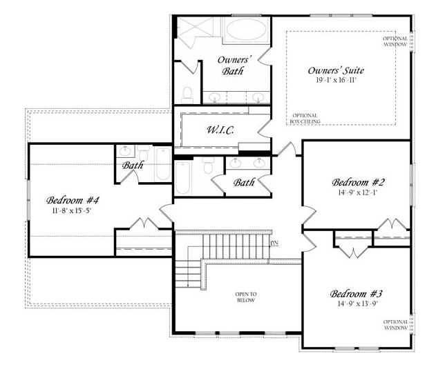
“A” Rzut poddasza – 4 sypialnie i strych nad częścią garażową
“B” Rzut parteru – Spory dom z dwu-stanowiskowym garażem oraz zewnętrznymi schodami do pomieszczenia “dodatkowego” nad garażem (np. biuro).
“B” Rzut poddasza – 2 sypialnie, łazienki i otwarta przesztrzeń nad foyer (sienią, gankiem, wiatrołapem)
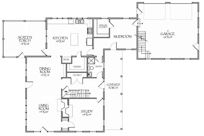
“C” Rzut parteru – Obszerny wiatrołap z wejściem na piętro oraz garaż dwustanowiskowy połączony z kuchnią i pralnią
“C” Rzut poddasza – 4 sypialnie 3 łazienki, duża garderoba; brak stropu nad strefą wejściową powiększa ją optycznie, doświetla i eksponuje schody
Zwróć uwagę na to, że jadalnia posiada wyjście na werandę, salon na ogród ziomowy i taras, wiatrołap łączy się z garażem i schodami na górę
Kolejny “szczegół” odróżniający amerykańskie rzuty domów od naszych to – pomysł na schody! Nie muszą być “takie jak u wszystkich!!”
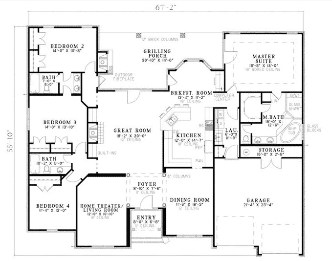
“D” – Rzut Parteru sporego domu z ogromną werandą, miejscem do grillowania i śniadania, dwustanowiskowy garaż, podpiwniczenie dostępne przez dużą garderobę, biuro, duża przestrzeń dzienna, jadalnia połączona z kuchnią i strefą wejściową
“D” Rzut poddasza: 4 sypialnie z łazienkami, garderoby, balkon i strefa wypoczynkowa; na rzucie widoczne siedziskowe parapety w prostokątnych lukarnach
“E” Rzut parteru, a w nim – dwustanowiskowy garaż dostępny z domu, dużą przestrzenią dzienną i sypialnią “gościnną”
“E” Rzut poddasza z trzema sypialniami, trzema łazienkami i “parapetem do siedzenia”
“F” Rzut parteru. Garaż w amerykańskim domu zawsze jest dwustanowiskowy i połączony z pomieszczeniami gospodarczymi stanowiącymi bufor przestrzeni chłodnej i ciepłej. Amerykanie nie boją się również pomieszczeń przejściowych. Zastanów się! Nie ma nic smutniejszego niż “zadrzwiowany” długi i smutny korytarz
“F” Rzut poddasza. Amerykanie lubią dostęp do łazienek bezpośrednio z sypialni. Salony często zostawiają “otwarte” do parteru. To dlatego mają takie duże przestrzenie! Zobacz – klatka schodowa również nie jest zamurowana!!
“G” Rzut parteru. Zobacz jak niewielki dom może zyskać na… otwarciu! Pozamykana przestrzeń to nic dobrego!
“G” Rzut poddasza. Ciekawostka – łazienka dostępna z dwóch sypialni. Zobacz, jak zbudowana jest główna sypialnia – ma oddzielną łazienkę i garderobę – intymnie i przestrzennie!
Parterowy domek z podpiwniczeniem. Zobacz ile przestrzeni zaoszczędzasz rezygnując z korytarza!
Parterowy dom z dwustanowiskowym garażem. Zwróć uwagę na podział części domu – komfortowo!
Parterowy dom z garażem dwustanowiskowym. Zabacz ile zaoszczędzasz dzieląc sprytnie funkcje pomieszczeń!
Parterowy dom z podpiwniczeniem i zadaszeniem dla samochodu
Rzut parteru niewielkiego domu – zobacz, jak zaoszczędzić przestrzeń na dobrym usytuowaniu klatki schodowej!
Na uwagę zasługuje garaż oddzielony pomieszczeniami pralni, gościnnego WC, garderowby i schodów oraz ogromna niewydzielona przestrzeń dzienna
Parterowy, spory dom z trzema sypialniami i dwiema dużymi werandami. Warte uwagi – oddzielenie sypialni “rodziców” od sypialni “dzieci”
Uwaga należy się ciekawej klatce schodowej, ogromnemu garażowi i wielkiemu przeszkolonemu salonowi
Ogromny dom parterowy z nieco za małym salonem w stisunku do powierzchni całości, za to z fantastycznie oddzielonymi sypialniami starszych i młodszych mieszkańców, które są w pełni niezależne od siebie
Jak pozbyć się korytarza? Właśnie tak ;]
Niewielki parterowy dom – rzut. Duży aneks kuchenny z salonem i wyjście na patio. Rozdzielone wyraźnie funkcje.
2 kondygnacje – domek o małej powierzchni zabudowy (ok 100m2). Godne polecenia – funkcja dzienna wspólna tylko na parterze!
Dwie sypialnie i brak sufitu nad salonem – tak powstają wnętrza godne polecenia ;]
Mały parterowy domek – rzut – 2 niezależnie funkcjonujące sypialnie i duży salon z kuchnią – dla małej rodziny – wystarczą w zupełności!
Większość wymiarów podana jest w imperialnych jednostkach metrycznych. Przelicznik? 1 inch = 25,4 mm (in) – [2,54cm] 1 foot = 30,48 cm (ft)
KLATKA SCHODOWA! Nie musi być typowa, nie musisz jej chować, jedna nie musi łączyć wszystkich pięter!
OTWARTE POMIESZCZENIA! Jak wyraźniej powiedzieć, że dobra, pozytywna, jasna i ciekawa przestrzeń to OTWARTA przestrzeń?
GARAŻ. Nie budujcie jednostanowiskowego.. Prędzej czy później zrozumiecie dlaczego ;]
GARDEROBY! Będziesz mógł w nich wszystko schować! Dosłownie wszystko!
STREFOWANIE – oddziel przestrzeń głośną od cichej – docenisz to!
WERANDA (a.k.a. porch) – wspaniały wynalazek do zaimplementowania POD ZADASZENIEM (w naszym klimacie). Będziesz tam siedzieć ;] Jak nie teraz to “na starość”. To lepsze niż wgniatanie łokci w parapet.
STREFA BUFOROWA oddzielająca garaż od powierzchni mieszkalnej.
STREFA WEJŚCIA – pamiętaj, że w Polsce musisz mieć wiatrołap (hall, sień, ganek….).
SCHODY- w Polsce max 17 w jednym biegu – nie zapomnij!
WYSOKI SALON – otwarty na dwie kondygnacje. Zapomnij o “praktyczności”. W salonie spędzasz najwięcej czasu! Oszczędź na sypialni, doświetl go wielkimi oknami i mieszkaj jak gwiazda. Z pewnością każdy będzie Ci zazdrościł (tak lubimy w Polsce – prawda :D ?)
Serdeczności! Pani Dyrektor Architekt
Kliknij po wiedze z zakresu projektowania domów i procedur urzędowych.
Architekt o Architekturze "Zainspiruj się!" - te słowa znajdziesz w prawie każdym moim poście. Dlaczego? Lubię pokazywać, podsuwać pomysły, zadawać pytania, szukać odpowiedzi, tworzyć koncepcje, wyszukiwać nietypowe rozwiązania.
W końcu znalazłam rozwiązanie mojego problemu dlaczego nie mogłam znaleźć takiego projektu domu, który spełniły moje oczekiwania… dowiedziałem się z tego wpisu, że ja chcę po prostu w stylu amerykańskim!!!!! Sama “zaprojektowałam” plan domu jaki chcę i okazuje się że to jest dom amerykański.
Od kilkunastu lat mieszkam w domu w którym praktycznie prawie cały parter jest otwartą przestrzenią. Wybrałam takie rozwiązanie z tych wszystkich powodów o których wspominacie. Byłam kiedyś zafascynowana nowoczesnymi rozwiązaniami. Mieszkałam też wcześniej w domu bez wiatrołapu. Znam więc to wszystko na własnej skórze. Kiedy budowałam dom przychodziły całe “wycieczki” znajomych obejrzeć rozwiązania niespotykane w sąsiedztwie. Dziś zastanawiam się jak najlepiej oddzielić od siebie pomieszczenia. Dla mnie ten układ się nie sprawdził. Zaraz wyjaśnię dlaczego: To co piękne na obrazku niekoniecznie jest takie w praktyce. Otwarta kuchnia na zdjęciach jest zawsze śliczna. W rzeczywistości – goście zawsze przyjdą gdy będzie największy bałagan. I mimo, że nie jestem przewrażliwiona na tym punkcie, to jednak niekoniecznie chcę, żeby każdy zaglądał mi do garnków (i czystych i brudnych). Kuchnia jest siedliskiem przeróżnych zapachów – nie zawsze pięknych (kiszona kapusta vs kalafior gotowany – co gorsze?). Okap, zmywarka, krajalnica, robot kuchenny – te sprzęty hałasują tym bardziej im bardziej chcesz się zrelaksować przy książce czy przed tv. Gdy chcę porozmawiać przez telefon w spokoju, muszę iść aż na piętro i zamknąć się w sypialni jeśli nie chcę przeszkadzać domownikom oglądającym film. Otwarta przestrzeń jest jak pudło rezonansowe. Jeśli nie masz drzwi na klatce schodowej – dzieci na piętrze nie mogą usnąć gdy wieczorem oglądasz film (a zwłaszcza horror), nawet jeśli wydaje Ci się, że telewizor ściszyłaś do minimum słyszalności. Co do wiatrołapu – gdy zimą temperatura spada – lodowaty podmuch prosto z dworu – to nie jest to czego pragnę najmocniej ;) Oczywiście to tylko moje zdanie i nikt nie musi się z nim zgadzać. Wiem, że w swoich preferencjach staję się nienowoczesna, ale cóż. Z wiekiem rośnie we mnie coraz większy praktycyzm (czy jak to nazwać inaczej). Gdybym dziś budowała dom to byłby bardziej tradycyjny: z oddzielną, zamkniętą kuchnią, salon co najwyżej może łączyć się z jadalnią. I na koniec stwierdzę przekornie, że nadal mi się podobają zdjęcia nowoczesnych wnętrz. Ale tylko zdjęcia i tylko do oglądania.
Hmm ;] A ja na to, co zawsze mówię wszystkim Inwestorom. Nie ma domów które są przystosowane na “wszystkie lata”. Człowiek się zmienia i wraz z nim jego preferencje. Porzekadło “pierwszy dom dla wroga, drugi dla przyjaciela trzeci dla siebie” ma sens tyko w kategorii remontu i zmiany płytek. Funkcja w projektowaniu jest inna dla przedszkola inna dla domu starców – to trochę ciężkie porównanie ale właśnie tak jest. Przykład: Dziś prosisz o schody zabiegowe bo są ładne, jutro płaczesz, że ciężko Ci wchodzić schorowanymi nogami na gorę wogóle, a co dopiero po takich schodach. Drastyczne, ale na tym przykładnie widać jak ZMIENIAJĄ SIĘ PROIORYTETY.
Proponuję Ci zrobić generalny remont ;] Po 10ciu latach czas najwyższy by coś zmienić bo i Twoje życie się zmieniło a dom to taka żywa istota – żyje razem z nami ;]
Masz rację. Nie ma domów na wszystkie lata. Już teraz widzę jak zmieniły się nasze potrzeby i preferencje. Przydałby się generalny remont, ale poczekam jeszcze kilka lat aż dzieci skończą studia i będą na własnym utrzymaniu. Na razie wszystkie środki, starania i nadzieje lokujemy w nich ;) A swoją drogą podobno w USA ludzie często się przeprowadzają dostosowując dom do możliwości i potrzeb. Zaczynają jako para w mieszkaniu w centrum miasta. Po narodzinach dzieci przeprowadzają się na przedmieścia do domu z ogrodem. Potem zmieniają go na większy razem ze wzrostem rodziny i dochodów. Po odejściu dzieci zamieniają na mniejszy, łatwiejszy do utrzymania, by zakończyć na Florydzie w luksusowym osiedlu dla seniorów na emeryturze. Taki model by mi się BARDZO podobał, gdyby nie jeden minus – money. Nasze dochody niestety nie równają się ich dochodom, choć wydatki być może tak ;)
1. brak wiatrołapu – wchodzi się od razu do salonu, ewentualnie przez foyer. Oczywiście anglosasi mają codzienne wejście przez garaż albo laundry room (“od podwórza”). Ale to rozwiązanie kojarzy mi się z budowaniem na pokaz, jak u nas na wsiach – brudna kuchnia w piwnicy i taka do oglądania i chwalenia się sąsiadkom na poziomie salonu :)
2. otwarta kuchnia – nie mam pojecia jak takie rozwiązanie może być funkcjonalne – hałas wyciągu, zmywarki przeszkadza w wypoczynku w salonie a do tego dochodzi obsesyjne dbanie o porządek, bo talerz w zlewie już robi nieporządek. Dla mnie otwarta kuchnia to wymysł deweloperów na pozorne powiększenie miniaturowych kawalerek, przenoszony potem na budownictwo jednorodzinne przez dotychczasowych mieszkańców małych mieszkań.
1. Ja uważam, że wejście do salonu bez wiatrołapu jest odświeżające. Nie każdy musi mieć tak jak wszyscy. Jedne drzwi za drugimi, zawsze to samo do nieskończoności… Wspieram pomysły inne ;] 2. Dla mnie – zmywarki prawie nie słychać, piekarnik nie buczy, zlewy są teraz takie głębokie i zrobione z kompozytu tak, że i garów nie widać ani się nie tłuką a przestrzeń jaka wielka. No chyba, że ktoś lubi zamknięte przestrzenie. Wentylatory też przecież w okapach nie są przemysłowe by strasznie hałasować. 3. Ja nie pochodzę z bloku a w moich domach powyrzucałabym najchętniej wszystkie ściany więc z takim ewaluowaniem się nie zgodzę. Albo ktoś lubi hale albo klity i tyle. Bez ewaluowania.
Oczywiście, nie każdy układ ma się wszystkim podobać. Tak jak z wieloma rzeczami i.. kolorami. I tutaj muszę tylko przyjąć do wiadomości twoje stanowisko. Natomiast skomentuję twoją “ocenę” dot. rozwiązania. otóż nie jest tak, że budują na pokaz. Wspominając o anglo-saksach… Ani u nas w Irlandii ani w UK ani w Australii ani w Kanadzie nikt z tych kogo znam, nie budował domu na pokaz. Może bardzo bogaci – tak, ale ja nie znam AŻ tak bogatych ludzi. W Irlandii salony często są małe, jak i reszta pokoi.. aż ZA mała. Lepsi architekci wykorzystują każdy centymetr powierzchni, który kosztuje przecież dużo. Między innymi dlatego eliminujemy pomieszczenia które nie wykorzystujemy często. Jak kogoś stać – to ok. Uwierz mi, bez wiatrołapu da się żyć i to bardzo dobrze. Kwestia przyzwyczajenia. Tradycji może też. Owszem, są wady ale trochę z innej bajki. A to co tu omawiamy nie jest wadą, czasami może jest źle użyte… jak słowa i kolory… :) Otwarte przestrzeni – integrują. (To jest to, czego tak brakuje w Polsce) Brak ogrodzeń i granic, wzmacnianie więzi społeczne i identyfikacji lokalnej… W rodzinie tak samo – strefa nocna – prywatna a dzienna jak najbardziej integracyjna. I wiesz, nikogo u moich znajomych, a nie mnie, ne martwi brudny garnek w zlewie. Nikt się tym nie przejmuje po prostu. A obsesyjne dbanie o porządek… Cóż, wszystko co jest obsesyjne jest chorobliwe. Życie jest zbyt krótkie by zyć na pokaz i przejmować się byle talerzem w zlewie. I wiesz, ostatnia rzecz jaką deweloper zrobi, to wymyśli coś DLA człowieka… zapewniam cię, otwrta kuchnia nie jest wymysłem dewelopera :).
Garaż jest bardzo drogą “zabawka”, więc jest bardzo mały ( o ile jest) i wchodzi się przez niego nie częściej niż w Polsce. Przez utility (czy laundry) wchodzi się PRZEWAŻNIE od strony podwórka, bo tylko tam prowadzą drzwi z tego pomieszczenia.
Może się mylę (jeżeli tak, to PD mnie poprawi) ale te wszystkie rzuty to są amerykańskie typówki. Więc nie oczekujmy za wiele ;).
A tak na marginesie – nienudna i niepowtarzalna funkcja powstaje nie sama z siebie, a z indywidualnych potrzeb użytkowników. Pamiętajmy o tym.
Co do całej reszty – całkowicie się zgadzam z komentarzem PD.
Aby zapewnić jak najlepsze doświadczenia, wykorzystujemy technologie takie jak pliki cookie do przechowywania i/lub uzyskiwania dostępu do informacji o urządzeniu. Wyrażenie zgody na te technologie umożliwi nam przetwarzanie danych, takich jak zachowanie podczas przeglądania witryny lub unikalne identyfikatory. Brak zgody lub jej wycofanie może negatywnie wpłynąć na niektóre funkcje i funkcjonalności witryny.
Funkcjonalne Zawsze aktywne
Przechowywanie lub dostęp techniczny jest ściśle niezbędny do realizacji prawnie uzasadnionego celu umożliwienia korzystania ze konkretnej usługi wyraźnie zażądanej przez abonenta lub użytkownika lub wyłącznie w celu przeprowadzenia transmisji komunikatu za pośrednictwem sieci komunikacji elektronicznej.
Preferences
The technical storage or access is necessary for the legitimate purpose of storing preferences that are not requested by the subscriber or user.
Statistics
The technical storage or access that is used exclusively for statistical purposes.The technical storage or access that is used exclusively for anonymous statistical purposes. Without a subpoena, voluntary compliance on the part of your Internet Service Provider, or additional records from a third party, information stored or retrieved for this purpose alone cannot usually be used to identify you.
Marketing
The technical storage or access is required to create user profiles to send advertising, or to track the user on a website or across several websites for similar marketing purposes.
W końcu znalazłam rozwiązanie mojego problemu dlaczego nie mogłam znaleźć takiego projektu domu, który spełniły moje oczekiwania… dowiedziałem się z tego wpisu, że ja chcę po prostu w stylu amerykańskim!!!!! Sama “zaprojektowałam” plan domu jaki chcę i okazuje się że to jest dom amerykański.
Od kilkunastu lat mieszkam w domu w którym praktycznie prawie cały parter jest otwartą przestrzenią. Wybrałam takie rozwiązanie z tych wszystkich powodów o których wspominacie. Byłam kiedyś zafascynowana nowoczesnymi rozwiązaniami. Mieszkałam też wcześniej w domu bez wiatrołapu. Znam więc to wszystko na własnej skórze.
Kiedy budowałam dom przychodziły całe “wycieczki” znajomych obejrzeć rozwiązania niespotykane w sąsiedztwie. Dziś zastanawiam się jak najlepiej oddzielić od siebie pomieszczenia. Dla mnie ten układ się nie sprawdził. Zaraz wyjaśnię dlaczego:
To co piękne na obrazku niekoniecznie jest takie w praktyce. Otwarta kuchnia na zdjęciach jest zawsze śliczna. W rzeczywistości – goście zawsze przyjdą gdy będzie największy bałagan. I mimo, że nie jestem przewrażliwiona na tym punkcie, to jednak niekoniecznie chcę, żeby każdy zaglądał mi do garnków (i czystych i brudnych).
Kuchnia jest siedliskiem przeróżnych zapachów – nie zawsze pięknych (kiszona kapusta vs kalafior gotowany – co gorsze?).
Okap, zmywarka, krajalnica, robot kuchenny – te sprzęty hałasują tym bardziej im bardziej chcesz się zrelaksować przy książce czy przed tv.
Gdy chcę porozmawiać przez telefon w spokoju, muszę iść aż na piętro i zamknąć się w sypialni jeśli nie chcę przeszkadzać domownikom oglądającym film.
Otwarta przestrzeń jest jak pudło rezonansowe. Jeśli nie masz drzwi na klatce schodowej – dzieci na piętrze nie mogą usnąć gdy wieczorem oglądasz film (a zwłaszcza horror), nawet jeśli wydaje Ci się, że telewizor ściszyłaś do minimum słyszalności.
Co do wiatrołapu – gdy zimą temperatura spada – lodowaty podmuch prosto z dworu – to nie jest to czego pragnę najmocniej ;)
Oczywiście to tylko moje zdanie i nikt nie musi się z nim zgadzać. Wiem, że w swoich preferencjach staję się nienowoczesna, ale cóż. Z wiekiem rośnie we mnie coraz większy praktycyzm (czy jak to nazwać inaczej). Gdybym dziś budowała dom to byłby bardziej tradycyjny: z oddzielną, zamkniętą kuchnią, salon co najwyżej może łączyć się z jadalnią.
I na koniec stwierdzę przekornie, że nadal mi się podobają zdjęcia nowoczesnych wnętrz. Ale tylko zdjęcia i tylko do oglądania.
Hmm ;] A ja na to, co zawsze mówię wszystkim Inwestorom. Nie ma domów które są przystosowane na “wszystkie lata”. Człowiek się zmienia i wraz z nim jego preferencje. Porzekadło “pierwszy dom dla wroga, drugi dla przyjaciela trzeci dla siebie” ma sens tyko w kategorii remontu i zmiany płytek.
Funkcja w projektowaniu jest inna dla przedszkola inna dla domu starców – to trochę ciężkie porównanie ale właśnie tak jest.
Przykład:
Dziś prosisz o schody zabiegowe bo są ładne, jutro płaczesz, że ciężko Ci wchodzić schorowanymi nogami na gorę wogóle, a co dopiero po takich schodach.
Drastyczne, ale na tym przykładnie widać jak ZMIENIAJĄ SIĘ PROIORYTETY.
Proponuję Ci zrobić generalny remont ;] Po 10ciu latach czas najwyższy by coś zmienić bo i Twoje życie się zmieniło a dom to taka żywa istota – żyje razem z nami ;]
Hmm ?
Masz rację. Nie ma domów na wszystkie lata. Już teraz widzę jak zmieniły się nasze potrzeby i preferencje. Przydałby się generalny remont, ale poczekam jeszcze kilka lat aż dzieci skończą studia i będą na własnym utrzymaniu. Na razie wszystkie środki, starania i nadzieje lokujemy w nich ;)
A swoją drogą podobno w USA ludzie często się przeprowadzają dostosowując dom do możliwości i potrzeb. Zaczynają jako para w mieszkaniu w centrum miasta. Po narodzinach dzieci przeprowadzają się na przedmieścia do domu z ogrodem. Potem zmieniają go na większy razem ze wzrostem rodziny i dochodów. Po odejściu dzieci zamieniają na mniejszy, łatwiejszy do utrzymania, by zakończyć na Florydzie w luksusowym osiedlu dla seniorów na emeryturze. Taki model by mi się BARDZO podobał, gdyby nie jeden minus – money. Nasze dochody niestety nie równają się ich dochodom, choć wydatki być może tak ;)
Mnie amerykańskie układy kompletnie nie pasują.
1. brak wiatrołapu – wchodzi się od razu do salonu, ewentualnie przez foyer. Oczywiście anglosasi mają codzienne wejście przez garaż albo laundry room (“od podwórza”). Ale to rozwiązanie kojarzy mi się z budowaniem na pokaz, jak u nas na wsiach – brudna kuchnia w piwnicy i taka do oglądania i chwalenia się sąsiadkom na poziomie salonu :)
2. otwarta kuchnia – nie mam pojecia jak takie rozwiązanie może być funkcjonalne – hałas wyciągu, zmywarki przeszkadza w wypoczynku w salonie a do tego dochodzi obsesyjne dbanie o porządek, bo talerz w zlewie już robi nieporządek. Dla mnie otwarta kuchnia to wymysł deweloperów na pozorne powiększenie miniaturowych kawalerek, przenoszony potem na budownictwo jednorodzinne przez dotychczasowych mieszkańców małych mieszkań.
1. Ja uważam, że wejście do salonu bez wiatrołapu jest odświeżające. Nie każdy musi mieć tak jak wszyscy. Jedne drzwi za drugimi, zawsze to samo do nieskończoności… Wspieram pomysły inne ;]
2. Dla mnie – zmywarki prawie nie słychać, piekarnik nie buczy, zlewy są teraz takie głębokie i zrobione z kompozytu tak, że i garów nie widać ani się nie tłuką a przestrzeń jaka wielka. No chyba, że ktoś lubi zamknięte przestrzenie. Wentylatory też przecież w okapach nie są przemysłowe by strasznie hałasować.
3. Ja nie pochodzę z bloku a w moich domach powyrzucałabym najchętniej wszystkie ściany więc z takim ewaluowaniem się nie zgodzę. Albo ktoś lubi hale albo klity i tyle. Bez ewaluowania.
Oczywiście, nie każdy układ ma się wszystkim podobać. Tak jak z wieloma rzeczami i.. kolorami. I tutaj muszę tylko przyjąć do wiadomości twoje stanowisko.
Natomiast skomentuję twoją “ocenę” dot. rozwiązania. otóż nie jest tak, że budują na pokaz. Wspominając o anglo-saksach… Ani u nas w Irlandii ani w UK ani w Australii ani w Kanadzie nikt z tych kogo znam, nie budował domu na pokaz. Może bardzo bogaci – tak, ale ja nie znam AŻ tak bogatych ludzi. W Irlandii salony często są małe, jak i reszta pokoi.. aż ZA mała. Lepsi architekci wykorzystują każdy centymetr powierzchni, który kosztuje przecież dużo. Między innymi dlatego eliminujemy pomieszczenia które nie wykorzystujemy często. Jak kogoś stać – to ok. Uwierz mi, bez wiatrołapu da się żyć i to bardzo dobrze. Kwestia przyzwyczajenia. Tradycji może też. Owszem, są wady ale trochę z innej bajki. A to co tu omawiamy nie jest wadą, czasami może jest źle użyte… jak słowa i kolory… :)
Otwarte przestrzeni – integrują. (To jest to, czego tak brakuje w Polsce) Brak ogrodzeń i granic, wzmacnianie więzi społeczne i identyfikacji lokalnej… W rodzinie tak samo – strefa nocna – prywatna a dzienna jak najbardziej integracyjna.
I wiesz, nikogo u moich znajomych, a nie mnie, ne martwi brudny garnek w zlewie. Nikt się tym nie przejmuje po prostu. A obsesyjne dbanie o porządek… Cóż, wszystko co jest obsesyjne jest chorobliwe. Życie jest zbyt krótkie by zyć na pokaz i przejmować się byle talerzem w zlewie.
I wiesz, ostatnia rzecz jaką deweloper zrobi, to wymyśli coś DLA człowieka… zapewniam cię, otwrta kuchnia nie jest wymysłem dewelopera :).
Garaż jest bardzo drogą “zabawka”, więc jest bardzo mały ( o ile jest) i wchodzi się przez niego nie częściej niż w Polsce. Przez utility (czy laundry) wchodzi się PRZEWAŻNIE od strony podwórka, bo tylko tam prowadzą drzwi z tego pomieszczenia.
Może się mylę (jeżeli tak, to PD mnie poprawi) ale te wszystkie rzuty to są amerykańskie typówki. Więc nie oczekujmy za wiele ;).
A tak na marginesie – nienudna i niepowtarzalna funkcja powstaje nie sama z siebie, a z indywidualnych potrzeb użytkowników. Pamiętajmy o tym.
Co do całej reszty – całkowicie się zgadzam z komentarzem PD.