Drewniane wille, górskie resorty, eko-budownictwo – 25 inspiracji
Ktoś ostatnio zarzucił mi, że “zafiksowałam się w betonie…” – nieprawda – piszę o tym, bo innych niż pustak technologii poszukuje jakieś 15% moich klientów i 10% z nich za inna technologię uważa drewno a tylko 5% poszukuje jeszcze czegoś innego. Z betonem nie jest również tak różowo – chce go jakieś 20%. Reszta pożąda pustaków – nawet konkretnej firmy, ale nie powiem jakiej bo to nie reklama…
Co ja mam zrobić? INSPIROWAĆ ;] Zaciekawiona do granic możliwości bardzo obszernym mailem od jednego z czytelników w pierwszym kwartale przygotuję dla Was całą serię artykułów o budownictwie alternatywnym.
Na początek mała zajawka – zbierałam kiedyś inspiracje dla centrum konferencyjnego pod Warszawą – miało być swojsko, naturalnie ale w dużym formacie – to właśnie chciałam dziś pokazać – drewniane wille, drewniana architektura hoteli i pensjonatów górskich.
Zobacz, jak projektuje się obiekty w technologii drewnianej o dużej kubaturze i stopniu skomplikowania konstrukcji. Odkryj drewniane wille z bali całych, połówek i brusów, kryte gontem albo łupkiem i z dodatkiem kamienia naturalnego.
Zainspiruj się!



Pozdrawiam wszystkich pragnących odrobiny natury w dzisiejszym świecie ;] !!
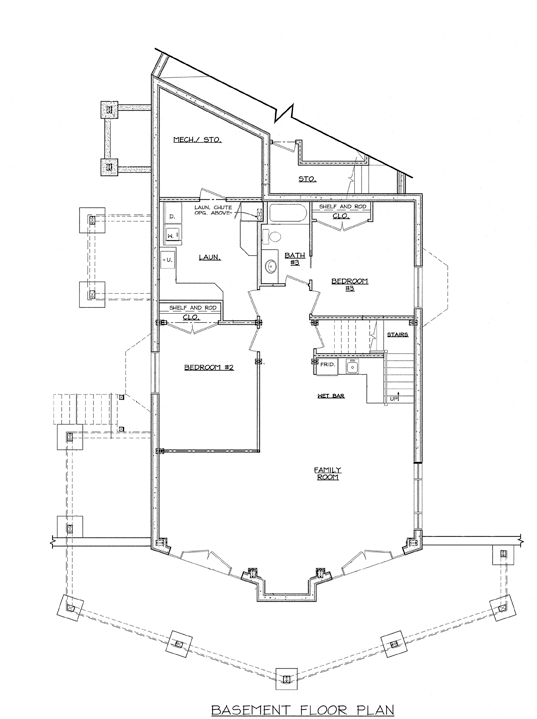
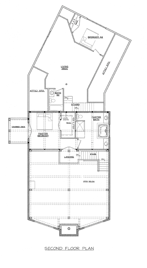
DODATEK dla Lester’a ;] – wnętrze i jeszcze jedna elewacja drewnianej willi oraz rzutu wszystkich kondygnacji ;]
;] Pozdrawiam!






























Witam. Chciałbym się dowiedzieć jak wygląda możliwość instalacji wyłącznie ogrzewania podłogowego w całym budynku drewnianym (parter + piętra)? Rozumiem, że piętra wymagałby wzmocnienia, ale czy jest możliwe wykonanie wylewki betonowej na drewnianym stropie?
Witam..Chcialbym zapytac czy podejmie sie pani wykonania podobnego projektu domu jak ten pid numerkiem 10.
Chodzi o to ze działka polozona jest na skraju lasu(3000m)-w woj.warm.maz.(Olsztyn).
Uwazamy źe domek polozony na łagodnym wzniesieniu o takiej arhitekturze świetnie wkomponował by sie w cale otoczenie..
Chcielismy wybudowac taki dom murowany a tylko elewacji nadac taki niespotykany na naszych terenach gòralski styl..
Wiem ze napewno taka mozliwosc istnieje,poniwaz w sasiedztwie powstal niedawno taki pensjonat.
Dom moglby byc nawet identyczny jak na zdjeciu,metrź okolo 150-180m.
Oczywiście nalezaloby dobrać takie materiały budowlane by ze sobą wspòłgrały.
Nie wiem np. Jakim materiałem w tym przypadku pokryty jest dach..Chcielibysmy jesli taka mozliwosc istnieje o podanie w przybluźeniu kosztøw budowy takiego domu w stanie surowym zamkniętym.
Panie Krzysztofie, proszę napisać na kontakt[at]urbanproject.pl i podać dane działki lub inne wytyczne. Prześlemy zwrotnie ofertę współpracy.
Mam podobny dom zaprojektowany i w realizacji ale z prawdziwego drewna i metrażem ponad 400m2. Okładanie elewacji deskami o naturalnym kształcie czy półbalem jest rozwiązaniem, ale trzeba pamiętać, że będzie różnić się ostatecznie od tego, co widzi Pan na zdjęciu. Nie zmienia to faktu, że wszystko jest możliwe do realizacji.
Dach domu nr 10 to gont bitumiczny jak niemal każdy dom a Ameryce i ten jest nim pokryty.
Koszty stanu deweloperskiego: każdy m2x min. 2500,00zł To cena realizacji przez generalnego wykonawcę. Cena metody gospodarczej jest niższa.
Pozdrawiam,
Agn. Puchyr
Witam!
Proszę o rzut wnętrza nr 10 i o wszystkie informacje jaki Pani posiada :)
Z góry bardzo dziękuję !
Pozdrawiam
Szanowny Panie Dariuszu, niestety nie posiadam żadnych bliższych informacji na temat tego domu. (Zawsze możemy Panu taki zaprojektować indywidualnie ;]) Pozdrawiam!
piekne domy drewniane szkoda ze nie ma rzutow pomieszczen i kondygnacji chodzi mi o nr14 orazo nr17 sa wspaniale architektnicznie pozdrawiam
Poszukam ;] – najwcześniej w weekend, ale jeśli będą dopiszę uzupełnienie ;] Zapraszam!
Fajne domy! Szkoda, ze nie opisujesz ich numerami bo trudno powiedziec o który mi chodzi… ale tej jest wspaniały: https://panidyrektor.pl/drewniane-wille-drewniana-architektura-ala-tradycyjna-25-inspiracji/drewniana-willa-gorska-ala-tradycyjna-przyklady-pomysly-2/ czy jest o nim coś wiecej?
Miałam numerować i … zapomniałam, że obiecałam :p – w uzupełnieniu wpisu dodaję 2 fotki i rzut wszystkich kondygnacji ;]
Dziękuje. Strasznie zakręcony ten układ funkcjonalny w środku… niemniej jednak z zewnątrz fajny… nawet bardzo!
Cała przyjemność po mojej stronie ;]