Szklany dom – zobacz jak wygląda dom ze szkła… we wnętrzu!

Szklany dom A co powiecie na szklany dom? Dom ze szkła najczęściej kojarzy nam się z jakąś ekskluzywną willą, willą marzeń – przestronny, jasny dom otwarty na swoje zewnętrze wielkopowierzchniowymi taflami ze szkła. Szkło na zewnątrz, beton w postaci ścian działowych czy konstrukcyjnych wewnątrz domu. A co gdyby sytuację odwrócić? ;]
Dzisiaj chciałam Wam pokazać szklany dom, ale taki, który posiada ściany zewnętrzne, skorupkę wykonaną z betonu, a jego wnętrze jest całkowicie szklane...
Jesteście już zaciekawieni? Zapraszam zatem do posta!
Nietypowy szklany dom, dom ze szkła
-zainspiruj się!

Na początek kilka info o samym projekcie.
Projekt powstał w pracowni Atelier FCJZ i został zrealizowany w 2013 roku w Szangahaju. Ten projekt to urzeczywistnienie idei i pomysłu sprzed 22 lat, którego autorem był Yung Ho Chang – jak widać czekanie na możliwość w realizacji podobnych pomysłów popłaca ;]
Ten szklany dom to tak naprawdę szklane wnętrze domu – zewnętrze domu jest wykonane całkowicie z betonu, a konstrukcja została zaprojektowana jako stalowa. Szklane wnętrze a betonowe zewnętrze to rozwiązanie całkowicie odwrotne do tych, które znamy z rozwiązań chociażby willi marzeń, gdzie te nowoczesne luksusowe wille otwierają się na zewnętrze domu, na otoczenie,w którym się znajdują.
W tym projekcie dom jest zamknięty prawie całkowicie na to, co znajduje się poza jego murami. Za to wnętrze można powiedzieć, że jest całkowicie otwarte.
Jak bardzo? Bardzo ;]
Jak takie założenie sprawdziło się w praktyce? Zobaczcie sami!
Szklany dom i jego betonowe zewnętrze



Szklany dom to 170 m2 powierzchni, na których zaprojektowana została podstawowa przestrzeń użytkowa – kuchnia, łazienka, sypialnia, piwnica. Wnętrze jest doświetlone przez świetlik, a raczej szklany stropodach i pośrednio przez szklane stropy.
Ten budynek to dom wynajmowany jako domek dla gości – kawalerka dla singla lub pary – zaraz przekonacie się dlaczego ;] bo pewnie jesteście ciekawi jak ten niezwykły dom wygląda wewnątrz? Zapraszam zatem do wnętrza!
Szklany dom – szklane wnętrze!





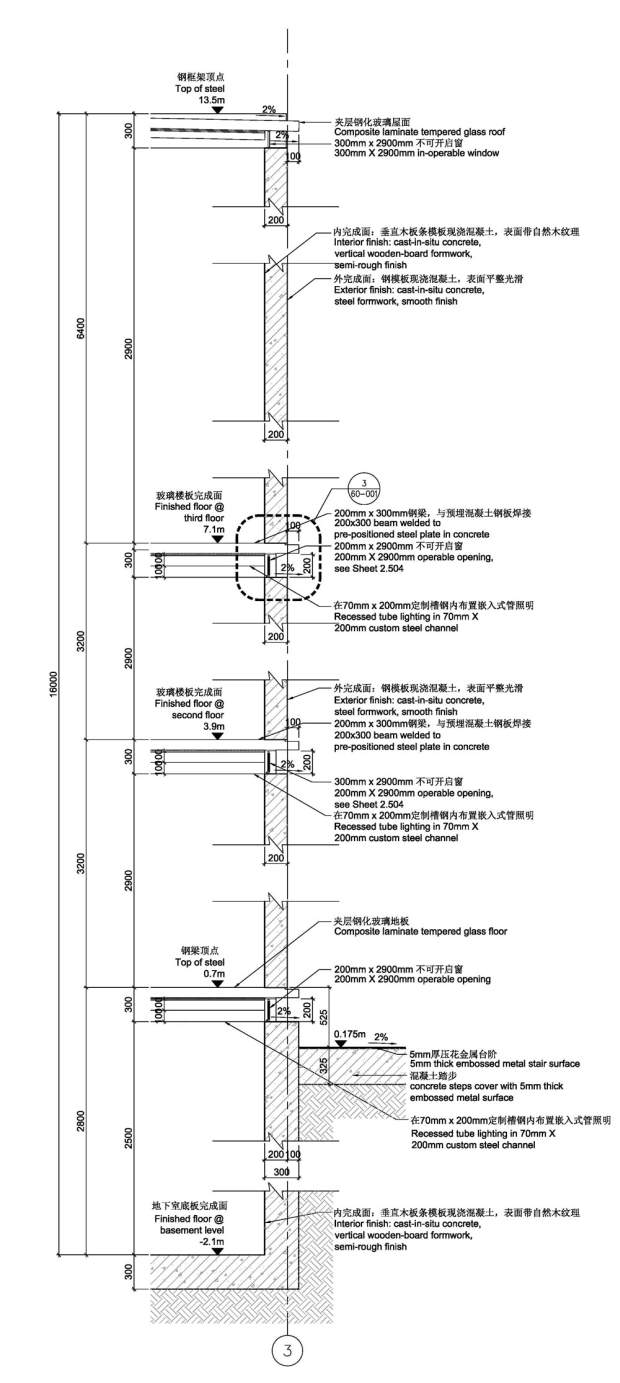
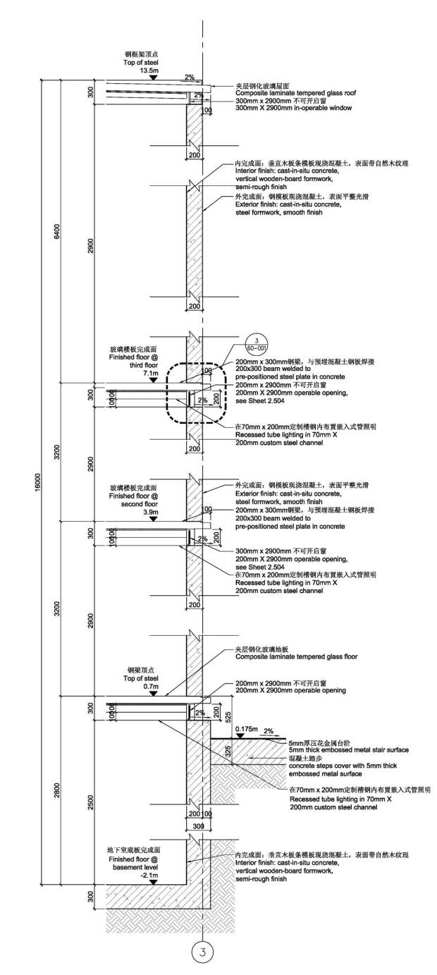
Rysunki techniczne Pewnie jesteście ciekawi jak ten projekt wygląda od strony technicznej? Mam dla Was rysunki 2D, które trochę Wam go przybliżą od strony projektowej. Zagospodarowanie terenu i otoczenia działki, rzuty, przekroje i elewacje czyli pełen zestaw – zainspiruj się jeszcze bardziej!
Szklany dom – kontrowersyjny temat?
Kontrowersje? Jak Wam się podoba taki projekt? Kiedy znalazłam go w czeluściach internetu i czytałam komentarze odnośnie jego – wiele było bardzo nieprzychylnych. Głównie ze względu na… łazienkę i możliwości z niej korzystania. Już pewnie wiecie dlaczego jest to dom wynajmowany dla singla lub pary – bo nie ma w nim intymności, wnętrze tego domu jest z niej całkowicie odarte.
Na sam koniec chciałabym dodać, że dom ten zbudowany został na…
Expo. Tak, moi drodzy Czytelnicy Pani Dyrektor. Ten dom to pomysł, eksperyment, kolejna próba na architektonicznej drodze doświadczeń. Wykonany został na potrzeby Bienniale of Architecture and Contemporary Art, które odbyło się w Szanghaju w 2013 roku. Czy to zmiana pozytywna? Gdzie istnieje granica w kreowaniu naszej przestrzeni, i nie tylko jego zewnętrza, ale jak się okazuje również wnętrza? To wszystko pozostawiam Wam do oceny ;] Jednego jednak nie można mu odmówić – ten szklany dom wart jest inspiracji! A co to Expo? Zobaczcie moją relację z Mediolanu 2015!
Pozdrawiam Was wieczorową porą z mojego biura w Rzeszowie ;]!
















Baaardzo fajna realizacja. W budynku zastosował bym jeszcze technologię SmartGlass, dzięki czemu zyskałby on prywatności w razie potrzeby.
Mody i trendy są miarą człowieka, a sztuka oczywiście niczego nie musi udawadniać i nie od dziś wiadomo, że gusta są różne dla mnie jednak to zjawisko, które tu zobaczyłem, to swoisty przerost formy nad treścią, jeżeli zaś traktować to w formie rzeżby, to jest to dla mnie conajmniej wątpliwe obnażanie całej infrastruktury i wprowadzanie jej w życie codzienne, dobra architektura powinna wnosić do naszego życia i otoczenia coś pozytywnego, zmieniać nas, dawać dużo radości i zadowolenia i współbrzmieć z otaczającą nas naturą
Ja uwielbiam maszyny budowlane, rolnicze, przemysłu ciężkiego ;] Uważam, że są słodkie – koparki zwykłe, odkrywkowe et. Jestem w stanie uwierzyć, że obnażenie budynku i wyciągnięcie instalacji na wierzch bawi i cieszy kogoś. Już Centre Georges Pompidou w Paryżu robiło to na większą skalę ;]
Jaką hipotezę ma ten eksperyment udowodnić? Pionowe przeszklenie tego domu i betonowe całkowicie izolujące od świata zewnętrznego ściany sprawiają wrażenie studni, pułapki z której nie można wyjść. Takich miejsc stanowczo nie można nazwać domem.
A czy sztuka musi coś udowadniać ? ;];] Taki rodzaj architektury jest traktowany jak rzeźba. Osobiście myślę, że fascynujące są instalacje i oglądanie “życia z góry i od spodu” :D
Jako eksperyment na expo – ciekawy budynek. Za to jako budynek do zamieszkania, już nie za bardzo się nadaje. To już nie tylko kwestia prywatności, ale i braku swiatła wewnątrz i przede wszystkim widoku na piękny, otaczający krajobraz. Myślę, że nawet singiel nie chciałby tam mieszkać.