Nowoczesny dom w zieleni – The Wall House- Wille marzeń Ep.36

Ostatnio pisałam dla Was o małym nowoczesnym domu w Los Angeles. Dzisiaj pora na kolejny bardzo inspirujący projekt i niezwykłą luksusową rezydencję – 36 nowoczesny dom w naszej serii ‘Wille marzeń‘ – zobacz jak wygląda ekskluzywny nowoczesny dom w zieleni i zainspiruj się!
Zapraszam!
Nowoczesny dom w zieleni – The Wall House



The Wall House czyli jak wygląda nowoczesny dom w zieleni?
Architekt Tę luksusową rezydencję zaprojektowało biuro architektoniczne FARM. Położona jest ona w Singapurze (hmm to kolejny nowoczesny dom z tego miejsca;] ), a ukończony został w 2013 roku. Ta ekskluzywna rezydencja to oczywiście dom jednorodzinny o trzech kondygnacjach – dwóch nadziemnych i jednej podziemnej. Podpiwniczona została tylko niewielka część domu gdzie znajduje się część rekreacyjna domu: piwniczka na wino i przestrzenny lounge czyli pokój wypoczynkowy.
Zapraszam Was do obejrzenia inspiracji – na początek zewnętrza tego domu i zaprojektowanej przy nim zieleni. Podobnie jak pozostałe projekty prezentowane u Pani Dyrektor, taki i ten dom jest projektem całościowym, gdzie poszczególne strefy, elementy domu zostały zaprojektowane równolegle, dzięki czemu dom jest jednolity i spójny.




Nowoczesny dom w zieleni – zainspiruj się jego wnętrzem!
Wnętrze domu jest bardzo przytulne, a jednocześnie niezwykle eleganckie. Zastosowanie drewna sprawiło, że ten dom zaprojektowany ściele z zielenią i na nią się otwierający stał się jeszcze bardziej naturalny. Stonowane kolory zostały zestawione tutaj z takimi elementami jak stolarka okienna w wyrazistym czarnym kolorze.
Funkcjonalnie dom został podzielony na dwie części, które dopiero połączone ze sobą dają spójną całość. Zamieszkany przez emerytowanych Inwestorów i jedno z ich dzieci ten nowoczesny dom to przestrzeń dzienna, reprezentacyjna oraz strefa rozrywkowa. Te dwie części podzielone i jednocześnie połączone zostały przez wprowadzenie wewnętrznego dziedzińca z drzewami o delikatnej fizjonomii.
Zapraszam do inspiracji!






Nowoczesny dom w zieleni i jeszcze więcej zdjęć!
Mam dla Ciebie jeszcze więcej zdjęć tego niezwykłego domu, a co za tym idzie jeszcze więcej inspiracji! Zobacz wnętrze tego domu jeszcze dokładniej: jadalnia, salon, kuchnia czy łazienka – zainspiruj się jeszcze bardziej! Zapraszam!
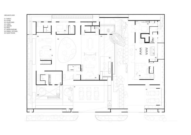
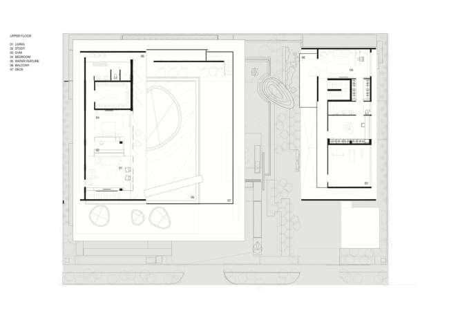
Nowoczesny dom w zieleni – jak wygląda w 2D?
Projekt i nasze lubione rysunki techniczne – dzisiaj mam dla Was same rzuty, kolejno każdej kondygnacji, każdego poziomu domu: parteru, piętra, piwnicy i dachu. Zapraszam do obejrzenia rysunków i zainspirowania się zarówno układem funkcjonalnym budynku i powiązania ze sobą poszczególnych pomieszczeń w domu jak również zaprojektowanej w tym nowoczesnym domu zieleni – zainspiruj się!
Mam nadzieję, że czujecie się mocno zainspirowani ;]
Po ostatnich bardzo surowych projektach w naszej serii ‘Wille marzeń’ (Bunker House, Villa Midgård) domy takie jak The Wall House czy mały nowoczesny dom w Los Angeles powinny być balsamem dla duszy dla osób, którym ciężko zaakceptować i przekonać się do innej niż ta architektury ;]
Ja tymczasem zapraszam Was po kolejne inspiracje u Pani Dyrektor – kto zgadnie czym teraz Was zainspiruję i co chciałabym Wam pokazać? ;]
Zapraszam niebawem!
PD Architekt pozdrawia Was ciepło i poleca indywidualne projektowanie jako remedium na powtarzalność i standaryzację ;]




















Wygląda naprawdę niesamowicie :D