Inspirujące biuro w starej drukarni – Giant Pixel – Biura, które inspirują Ep.2

Chcesz zobaczyć inspirujące biuro niewielkiej firmy zaprojektowane w budynku starej drukarni? W takim razie zapraszam do posta! Nowoczesne, bardzo inspirujące wnętrze i niesamowita swoboda w projektowaniu. – Zobacz jak urządzona została nowoczesna przestrzeń biurowa Giant Pixel w San Francisco! – Zapraszam!
Stara drukarnia. Wybór miejsca nowej siedziby firmy Giant Pixel nie jest przypadkowe. Inwestorzy wybrali jeden z budynków znajdujący się w dzielnicy o starej zabudowie z początków XX wieku, znanej z przeprowadzonych tam modernizacji i rewaloryzacji obiektów. Wybór padł na budynek starej drukarni – jak widać samo miejsce było już bardzo inspirujące. ;] Projektanci tylko je w swoim zamyśle dodatkowo podkreślili i uwypuklili jego największe zalety – stare, drewniane stropy, oryginalne ściany, lekko industrialny charakter.
Za projekt odpowiedzialne jest biuro O+A, którego jedną z realizacji opisałam na blogu w poście z serii ‘Biura Wielkich Korporacji’ – Nowoczesna Przestrzeń Biurowa – Dreamhost, California – Biura wielkich korporacji Ep.8. O ile tamto biuro to siedziba z jednej z największych firm IT na świecie, o tyle Giant Pixel to początkująca firma zajmująca się tworzeniem oprogramowania do gier. Co je łączy? Niesamowity design nowoczesnego biura i zespół, który te biura stworzył.
Inspirujące biuro Giant Pixel to trzy kondygnacje:
- parter – przestrzeń publiczna, na poziomie której znajduje się recepcja, poczekalnia, miejsca pracy czy miejsca spotkań z klientami.
- piętro – przestrzeń przeznaczona dla pracowników, bardziej lub mniej otwarte kabiny pracy, pokoje biurowe, mini sale konferencyjne czy kącik kawowy. Ciekawym rozwiązaniem jest podwieszony kominek, w otoczeniu którego znajdują się miękkie pufy, fotele, siedziska. Jest to zarówno miejsce do spotkań nieformalnych, jak również kreatywna przestrzeń do bardziej swobodnych zebrań czy konsultacji.
- piwnica – wydzielone miejsce relaksu. Na tej kondygnacji zaprojektowany został bar oraz miejsce do grania w gry video – na krótką przerwę dla znużonych programowaniem pracowników. ;]
Zapraszam Was do obejrzenia zdjęć. – Inspirujące biuro Giant Pixel to nowoczesna przestrzeń biurowa wspomagająca kreatywną pracę. – zainspiruj się!
Inspirujące biuro Giant Pixel w San Francisco




Piętro – zobacz jak wygląda przestrzeń nowoczesnego biura na piętrze budynku – mieści ono głównie poszczególne stanowiska pracy, o różnej formie i designie połączone z nieformalnymi miejscami wypoczynku jak przestrzeń wokół kominka czy kącik kawowy. Zainspiruj się nowoczesną, kreatywną przestrzenią biurową Giant Pixel!
Inspirujące biuro Giant Pixel w San Francisco
-zobacz jak wygląda nowoczesny design biura!





Piwnica Na koniec jeszcze design miejsca wypoczynku dla strudzonych informatycznych umysłów czyli piwnica gdzie zaprojektowany został bar wraz z wygodnymi kanapami i stylowymi stolikami. Zapraszam do obejrzenia zdjęć – zainspiruj się! Ta przestrzeń w wymiarze biura jest również bardzo ważna i bardzo potrzebna.
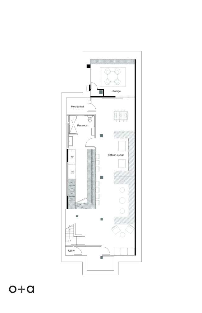
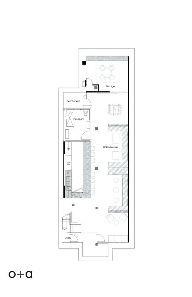
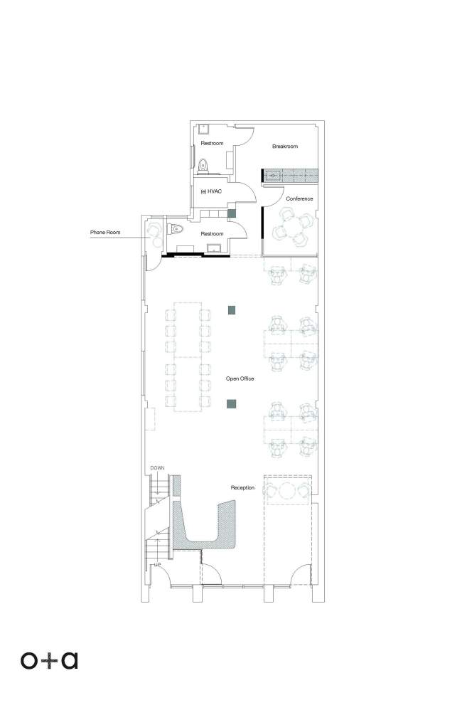
Zobacz rzuty tej nowoczesnej przestrzeni!
Projekt Na koniec oczywiście jeszcze kilka rysunków technicznych, przedstawiających rozwiązania techniczne i funkcjonalne wybranego projektu – tym razem pokażę Wam rzuty tego niezwykle inspirującego biura. Zainspirujcie się projektem tej nowoczesnej przestrzeni biurowej w wymiarze 2D!
Mam nadzieję, że podobało Wam się inspirujące biuro i nowoczesna przestrzeń biurowa Giant Pixel w San Francisco. Seria ‘Biura, które inspirują‘ została trochę zapomniana na rzecz serii ‘Biura Wielkich Korporacji‘ – zupełnie niesłusznie, gdyż niewielkie biura również mogą być urządzone niezwykle kreatywnie, uwzględniając potrzeby swoich pracowników oraz dbałość o nowoczesny, niepowtarzalny design, nie zmniejszając przy tym funkcjonalności i wygody biura.
Jeżeli szukasz więcej inspiracji zapraszam Cię do pierwszego posta z tej serii czyli Biura, które inspirują Ep.1 – Selgas Cano urządza miejsce pracy Twoich marzeń – zainspiruj się jeszcze bardziej niesamowitym biurem blisko natury!
Uwielbiam kreatywne podejście do biur i designu ;]
Pozdrawiam Was z mojego, równie kreatywnego biura projektowego i obiecuję – już niedługo – pokażę Wam jeden z pokoi mojej pracowni zamieniony w mocno kreatywną przestrzeń typu iLab – szczegóły już wkrótce!






