Jak Wygląda Nowoczesny Dom? -Zainspiruj się! – Shaw House Ep.27

Pewnie nie raz zastanawialiście się Jak wygląda nowoczesny dom? Myślę, że każdy z domów prezentowanych w naszej serii ‘Wille marzeń’ mógłby być odpowiedzią na to pytanie. Dzisiaj jednak pokażę Wam nowoczesny, luksusowy dom, który tą odpowiedzią jest na pewno – Shaw House – niezwykły, inspirujący, luksusowy dom.
Zapraszam!



Jak wygląda nowoczesny dom? -Shaw House, Canada
Zapraszam Was do nowoczesnej rezydencji Shaw House zlokalizowanej w Kanadzie. Ta niezwykła, luksusowa rezydencja nie potrzebuje wcale nieziemskiej lokalizacji ponieważ sama w sobie jest… właśnie nieziemska! Zobaczcie niezwykłe, niestandardowe rozwiązania i innowacyjne pomysły!
Bo któż z Was zdecydowałby się na przeszklony od dołu basen znajdujący się na pierwszej kondygnacji w strefie wejściowej domu?;]
No właśnie!

Bo nowoczesny dom to niestandardowe pomysły!
I jeszcze odrobina odwagi i szaleństwa potrzebna do ich realizacji ;]


Wiecie co jest najbardziej niezwykłego w tym domu?
TO, ŻE MA JUŻ 16 LAT!
2000 r. Tak, ukończony w roku 2000 jest przykładem na to, że pojęcie ‘NOWOCZESNA ARCHITEKTURA’ jest pojęciem względnym, a prawdziwie wartościowa architektura, architektura nowoczesna to architektura ponadczasowa!
Bo tak jak wspomniałam powyżej, nowoczesne projektowanie to niestandardowe myślenie!
Zainspirujcie się zatem jeszcze bardziej!



Projekt Za projekt odpowiedzialne jest biuro architektoniczne Patkau Architects. Z założenia jest to przestrzeń zaprojektowana dla jednej osoby, a dom ma powierzchnię 285 m2! Mieści w sobie przestrzenie do wypoczynku, studio oraz pokój muzyczny.
Projekt tego nowoczesnego domu został zdeterminowany przez działkę, na której się znajduje – długa na 47 metrów, jednak szeroka jedynie na 10 metrów! Ze względu na to całkowita szerokość domu to 8m. Jak widać nie stanowiło to przeszkody do zaprojektowania tej niezwykłej luksusowej rezydencji.

Wnętrze Zapraszam Was do wnętrza Shaw House. Jesteście ciekawi jak zaprojektowane zostało wnętrze domu, który nie boi się wprowadzać innowacyjnych pomysłów w życie i nie stroni od niestandardowych rozwiązań? Wydaje mi się, że wnętrze luksusowego domu Shaw House określają 3 słowa:
- proste,
- oszczędne,
- przemyślane.
Ten dom to połączenie prostych, nowoczesnych materiałów wykończeniowych – betonu architektonicznego, białego tynku, drewna i szkła. Zaprojektowane w ten sposób, aby poszczególne strefy wzajemnie się przenikały i uzupełniały. Nowoczesny dom Shaw House to przede wszystkim otwarta przestrzeń i zabawa formą.
Zainspiruj się!
A więc jak wygląda nowoczesny dom?
Właśnie tak!



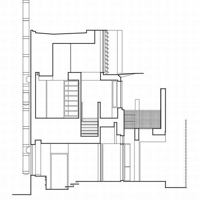
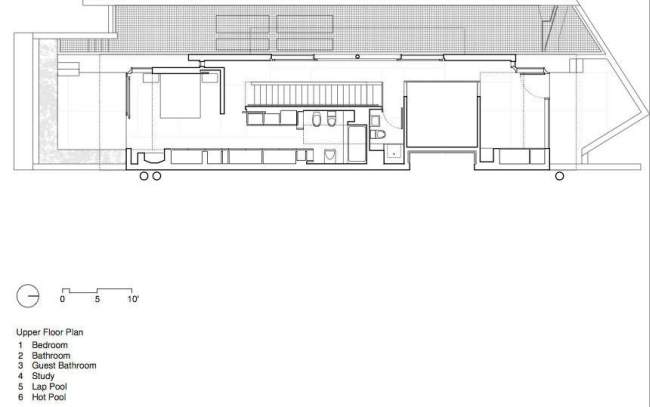
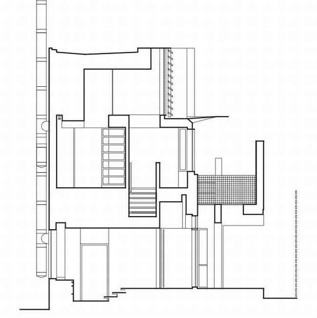
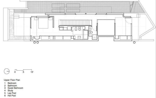
Rysunek techniczny Na koniec oczywiście rysunki techniczne projektu czyli przedstawione na rzutach poszczególne kondygnacje, a przede wszystkim przekroje budynku, które tak naprawdę pozwalają zrozumieć, jak ten budynek będzie wyglądał i funkcjonował w świecie rzeczywistym. Szczególnie dom o tak nietypowym projekcie i rozwiązaniu – zainspiruj się! Zacznij planować dom swoich marzeń!
To by było tyle na dzisiaj ;]
Mam nadzieję, że jak zawsze po kolejnym odcinku z serii ‘Wille marzeń’ czujecie się mocno zainspirowani ;]
Jeżeli zastanawiasz się od czego rozpocząć planowanie, projektowanie domu zajrzyj tutaj:
- Jak wybrać, zaprojektować, rozplanować dom swoich marzeń Ep.1 Dom z Rzutu
- Jak wybrać, zaprojektować, rozplanować dom swoich marzeń Ep. 2 Funkcja
- Projekt domu indywidualnego czy projekt domu typowego co wybrać Ep.3
- Jak NIE wybrać projektu domu w 3 dni i dlaczego NIE WARTO robić tego szybko.
-znajdziesz tu kilka porad od czego zacząć budowanie domu swoich marzeń!
Jeżeli natomiast szukasz inspiracji – zapraszam Cię do pozostałych wpisów na Pani Dyrektor!
Już niedługo kolejny posty o projektowaniu domu, organizacji wnętrza domu, luksusowych rezydencjach czyli willach marzeń czy domach amerykańskich – już teraz zapraszam Cię na nie serdecznie!
PD Architekt pozdrawia Was z biura w Rzeszowie w Świąteczną Sobotę ;]

























Dodam coś od siebie, odnośnie fotografii ze zdjęciem przeszklonego basenu. Kilka lat temu wykonałem w chodniku płytę szklaną, a pod nią umieściłem pomieszczenia komercyjne. Płytę, uszczelnienia, oraz chodnik wokół płyty wykonywały najlepsze i najdroższe firmy na rynku. Po kilku latach, cała konstrukcja cieknie nie wiadomo gdzie i nie wiadomo jakie koszty pochłonie remont.
Tak więc nie polecam takich rozwiązań, które nie służą niczemu poza zbytkiem łaski. Pozdrawiam.
Na rynku wiele jest projektów tego typu. Może nowy budynek osiada nierównomiernie ?? etc etc. Gdyby nie takie rozwiązania, świat byłby parszywie nudny. Ja jestem za z całym inwentarzem konsekwencji nawet.