Ziemianka mieszkalna czyli jak wygląda dom pod ziemią? Dzisiaj przygotowałam dla Was kolejny post i kolejny ziemiankowy przykład na to, że DOM POD ZIEMIĄ można mieć, można nawet w nim mieszkać, a najlepsze jest to, że może on stanowić kawał dobrej architektury. Dzisiaj przenosimy się do słonecznej Grecji a w niej…
Jak Wam się podoba? Nie martwcie się, ta biała dziura to na szczęście nie jest całość Aloni House ;] to jest tylko jego początek ;]Zwróćcie uwagę już teraz, jak w tym projekcie i w tej realizacji zadbano o szczegóły.Piękna, wykończona kamieniem elewacja, do tego prosta bryła, i jasny układ. Zwróć uwagę na grę kompozycji – to również jest istotny element w projektowaniu.
Projekt i realizacja biura decaARCHITECTURE czyli Aloni House. Pokazywałam Wam ją wstępnie w naszym zestawieniu nowoczesnych ziemianek, pamiętacie? Dzisiaj chciałam przybliżyć Wam ten wspaniały projekt jeszcze bardziej! I mimo, jak już wspominałam, ziemianka mieszkalna Aloni NIE JEST TYPOWĄ ZIEMIANKĄ, to jednak jako dom pod ziemią i przykład świetnej architektury jak najbardziej nadaje się na inspirację u Pani Dyrektor ;] W takim razie zapraszam Wszystkich do lektury i oglądania zdjęć pięknej architektury – inspirujcie się jeszcze więcej!
Ziemianka mieszkalna Aloni House, Grecja.
Jedne ze wzgórz, między którymi rozpięty jest Aloni House. I dach domu, stanowiący most między wzgórzami.Istotnym atutem tego projektu i jego późniejszej realizacji jest na pewno wykorzystanie tamtejszej roślinności, co jeszcze ściślej łączy budynek z jego lokalizacją. Zewnętrzne patio – może w ten sposób? Patio przy ziemiance widzieliśmy również w nietypowym rozwiązaniu w Ville Vals w Szwajcarii prawda? Które bardziej przypada wam do gustu?;]Prosta forma, obłożona kamieniem ściana zewnętrzna i basen o powierzchni 43 m2.
Dom usytuowany jest między dwoma wzgórzami a jego struktura i forma tworzą coś w rodzaju mostu pomiędzy nimi. Budynek spokojnie i lekko zagłębia się częściowo w ziemię, co w końcowym efekcie sprawia, że środkowa jego część znajduje się na powierzchni. Główne wzmocnienie budynku i jednocześnie osłonę przed silnym wiatrem stanowią dwie grube, długie ściany zewnętrzne wykończone kamieniem. Tym samym kolorystycznie i materiałowo nawiązują one do lokalizacji i krajobrazu, w którym się znajdują.
Dzięki temu, że Aloni House czyli nasza dzisiejsza ziemianka mieszkalna jest zagłębiona w ziemi, świetnie dostosowuje się do topografii i krajobrazu, w którym się znajduje. Umiejętność wykorzystania potencjału działku to jeden z wyznaczników nowoczesnego projektowania. Zgadzacie się ze mną?;] Ziemianka mieszkalna jako pomost między wzgórzami – to się nazywa nowoczesne projektowanie, projektowanie w kontekście ;]Widok na dach Aloni House, na sąsiadujące wzgórze z zabudową oraz wewnętrzne patio. Dach również został specjalnie zaprojektowany i stanowi on w tym wypadku nie piątą, a 3 elewację domu – z wiadomych względów;]Ziemianka mieszkalna wśród zieleni – również bardzo inspirująca!
Jak myślicie, jak Aloni House wpisuje się w krajobraz? ;]
Aloni House jako most między wzgórzami.
Aloni House wśród wzgórz.
Widok z góry czyli jak wygląda ziemianka mieszkalna Aloni House z lotu ptaka ;]
Jedna ze ścian zewnętrznych – ta wykończona jest kamieniem. Ściany zewnętrze stanowią tutaj główną konstrukcję – to na nich rozpięte są poszczególne stropy.
Jeszcze jeden widok na Aloni House z góry – połączenie nowoczesnego projektowania z tradycją.
Modern Ale nasza ziemianka mieszkalna to również ziemianka nowoczesna ;] zobaczcie jak wygląda nowoczesna ziemianka mieszkalna, nowoczesny dom pod ziemią!
Widok na nowoczesny basen a w oddali – piękny widok na morze. Nowoczesne projektowanie to projektowanie z głową i wyczuciem.Piękne patio z lokalną roślinnością i stylizowanymi meblami. To miejsce to idealne miejsce do czytania! Zainspiruj się!Widok z Aloni House czyli zachód słońca w nowoczesnej ziemiance. Nowoczesna ziemianka mieszkalna z widokiem – czy aby nie odpowiednik jednego z domów serii ‘Wille marzeń – Dom z widokiem’?;]Oszczędne materiały. W naszej ziemiance mieszkalnej dominuje głównie beton i kamień. Wszystko oczywiście w odpowiednich proporcjach. Jeżeli nowoczesny basen to oczywiście basen bez krawędzi ;]Bo pięknych zdjęć i inspiracji u Pani Dyrektor nigdy za wiele ;]Czy to zdjęcie Wam czegoś nie przypomina?;] Bo mi tak;] Pamiętacie nasz ‘Dom pod ziemią czyli Earth House w Korei‘? Jeżeli jeszcze go nie odwiedziłeś drogi Czytelniku – koniecznie zaglądnij!
Widok z części dziennej na taras z basenem i znajdujące się w oddali morze.
Bo nowoczesny dom, w tym również ziemianka mieszkalna;], to dom z basenem!
Basen znajdujący się bezpośrednio przy budynku wraz z towarzyszącym tarasem.
Co nam jeszcze zostało? A co powiecie na to, aby zwiedzić wnętrze Aloni House? ;]
Wnętrze – zapraszam Was do wnętrza nowoczesnej ziemianki a w nim? Znajdziemy tutaj bardzo oszczędne, stonowane, proste ale jednocześnie eleganckie i przytulne wnętrze. Oczywiście całe w bieli ;] w końcu to greckie wnętrze, wnętrze domu w iście greckim stylu! Podoba mi się to łączenie nowoczesności z tradycją – nadaje domu charakteru i indywidualizmu, a przy tym nie odziera go z jego tożsamości.
Ziemianka mieszkalna Aloni House to 390 m2 przestrzeni, z czego 237 m2 to przestrzeń użytkowa. Czy wygląda na taką?;] Aloni House mieści w sobie 6 łazienek i 5 sypialni – zobaczcie jak wyglądają!
Nowoczesna ziemianka mieszkalna, to również nowoczesne wnętrze!Piękne, oszczędne a mimo wszystko przytulne wnętrze to wnętrze Aloni House;]Tutaj nowoczesność została świetnie połączona z tradycją, dzięki czemu dom zyskał niepowtarzalną, SWOJĄ tożsamość!
W kązdym pomieszczeniu dominuje biel – to bardzo typowe dla Grecji prawda?
Biel zestawiona z ciepłym drewnem daje poczucie miękkości i trochę ją oswaja.
Zwróćcie uwagę na kontrastowo dobraną kolorystykę stolarki drzwiowej i okiennej.
Dzięki temu wnętrze nie robi się mdłe a biel nie jest przesadzona.
Wnętrze pokoju gościnnego z towarzyszącą jadalnią i kuchnią.
Sypialnia w bieli czyli sypialnia po grecku ;]
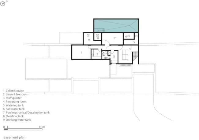
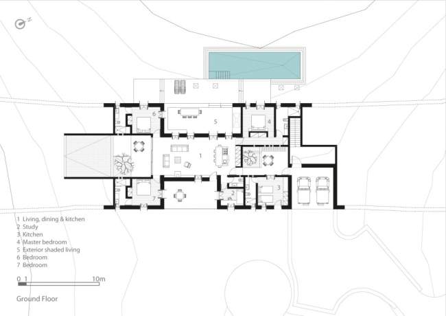
Rysunki techniczne Zapraszam do zerknięcia do galerii rysunków technicznych – znajdziecie w niej m.in. model (!), rzuty poszczególnych kondygnacji, przekroje budynku, jego elewacje, master plan…. A zresztą zobaczcie sami!! Galeria rysunków technicznych czyli jak wygląda projekt od kuchni – zainspirujcie się jeszcze więcej!
Aloni House i model budynku czyli zobacz wszystko w rzeczywistym 3D ;]
Master plan -czyli gdzie znajduje się Aloni House i jak wygląda jego otoczenie.
Struktura topograficzna i poziomice pokazują układ krajobrazu.
Zobacz jak wpasował się w nią Aloni House – czyli nasza ziemianka mieszkalna.
Rzut parteru Aloni House.
Rzut piwnicy naszego budynku.
Przekrój budynku nr 1.
Przekrój budynku nr 2.
Przekrój budynku nr 3 – dzięki przekrojom widzisz jak budynek wygląda i jak będzie można go użytkować.
Jedna z dwóch elewacji Aloni House, nie licząc oczywiście dachu ;]
Jak Wam się podobała ziemianka mieszkalna Aloni House? Mam nadzieję, że czujecie się zainspirowani i macie otwartą głowę na nowe, czasami nietypowe pomysły. Nie bójcie się marzyć, próbować i planować domu swoich marzeń! Może będzie to ziemianka? Może ziemianka mieszkalna?;]
Nie wiecie jak, od czego zacząć? Przejrzyjcie posty :
może właśnie tam znajdziecie odpowiedź na nurtujące Was pytania ;]
Ze względu na to, że dzisiaj był już 10 epizod z naszej serii o ziemiankach, przyszła pora na małe podsumowanie, które już niedługo pojawi się u Pani Dyrektor! Zapraszam Was już teraz! Śledźcie uważnie Panią Dyrektor ;] oczywiście wirtualnie, może nie w dosłowny sposób ;]
P.S. CiekawostkaMoje biuro wraz z Krzysztofem Lisem również wykonało projekt przykładowej ziemianki, służącej nie tylko jako miejsce do przechowywania przetworów czy płodów rolnych, ale również jako schron. Chcesz wiedzieć coś więcej na ten temat? Zapraszam do posta Ziemianka czy schron? Zbuduj z nami własną ziemiankę, w której możesz przetrwać wszystko;] Już niedługo premierowa odsłona Ziemianki – schronu “na gorsze czasy” lub “do przechowywania” – jak kto woli
Spacer 3D po zaprojektowanym przez nas domu indywidualnym czeka na ciebie! Zapraszamy!
Architekt o Architekturze "Zainspiruj się!" - te słowa znajdziesz w prawie każdym moim poście. Dlaczego? Lubię pokazywać, podsuwać pomysły, zadawać pytania, szukać odpowiedzi, tworzyć koncepcje, wyszukiwać nietypowe rozwiązania.
Aby zapewnić jak najlepsze doświadczenia, wykorzystujemy technologie takie jak pliki cookie do przechowywania i/lub uzyskiwania dostępu do informacji o urządzeniu. Wyrażenie zgody na te technologie umożliwi nam przetwarzanie danych, takich jak zachowanie podczas przeglądania witryny lub unikalne identyfikatory. Brak zgody lub jej wycofanie może negatywnie wpłynąć na niektóre funkcje i funkcjonalności witryny.
Funkcjonalne Zawsze aktywne
Przechowywanie lub dostęp techniczny jest ściśle niezbędny do realizacji prawnie uzasadnionego celu umożliwienia korzystania ze konkretnej usługi wyraźnie zażądanej przez abonenta lub użytkownika lub wyłącznie w celu przeprowadzenia transmisji komunikatu za pośrednictwem sieci komunikacji elektronicznej.
Preferences
The technical storage or access is necessary for the legitimate purpose of storing preferences that are not requested by the subscriber or user.
Statistics
The technical storage or access that is used exclusively for statistical purposes.The technical storage or access that is used exclusively for anonymous statistical purposes. Without a subpoena, voluntary compliance on the part of your Internet Service Provider, or additional records from a third party, information stored or retrieved for this purpose alone cannot usually be used to identify you.
Marketing
The technical storage or access is required to create user profiles to send advertising, or to track the user on a website or across several websites for similar marketing purposes.
niejaki Rothschild (nomen omen bardzo negatywna rodzina) i dość podobny dom w UK:
https://www.google.pl/search?q=rothschild+flint+house&source=lnms&tbm=isch&sa=X&ved=0ahUKEwihvY_yraXKAhUiv3IKHaPfB64Q_AUIBygB&biw=1201&bih=806