Kontynuując naszą serię o ‘Willach marzeń’, wraz z 3 dziesiątką postów, zaczęłam dla Was wyszukiwać nowoczesne domy, którymi warto się inspirować, a które znajdują się w uniwersalnej lokalizacji – takiej, która nie ma wpływu na jakość architektury i niezwykłych rozwiązań, które pojawiają się w tych niesamowitych domach. Dzisiaj kolejny dom, który spełniać będzie to założenie – zapraszam Was do posta a w nim ekskluzywny dom 65BTP House!
Willa marzeń Co kryje się pod tą niesamowitą nazwą domu? Równie niesamowity projekt i luksusowa realizacja! Ten nowoczesny dom to dom jednorodzinny położony w Singapurze. Zachwyca funkcjonalnie rozwiązaną przestrzenią, pełną elegancji i niespotykanego uroku. Przekonajcie się sami, jak luksusowo rozwiązana została tutaj zarówno przestrzeń, jak i bryła samego budynku – zapraszam do inspiracji!
Ekskluzywny Dom to Dom Nowoczesny!
Ten luksusowy dom nie posiada zachwycającego widoku na morze czy ocean, nie jest położony na wybrzeżu czy w górach, a mimo to, bez wątpienia zasłużył sobie na to, żeby znaleźć się w naszej serii Wille marzeń.Bryła o horyzontalnej formie, budynek znajdujący się bezpośrednio przy wodzie, zieleń przy domu, nawet ta w niewielkiej formie – to tylko niektóre z rozwiązań, które sprawią, że Twój dom będzie nowoczesny, a przy tym bardzo naturalny.Elewacja widziana od strony drogi – oprócz nowoczesnych materiałów i zestawienia bieli tynku z ciepłym drewnem nic nie zdradza nowoczesności i niezwykłości tego domu. Plus za ogrodzenie nawiązujące swoją formą do bryły budynku.Efektowne podświetlenia – nie raz i nie dziesięć wspominałam o tym, jak ważne jest zaprojektowanie odpowiedniej iluminacji budynku podnoszącej, a raczej podkreślającej walory budynku również nocą.Spokojny i spójny design budynku. O zaprojektowaniu ogrodzenia budynku nawiązującego do bryły przygotowuję dla Was osobnego posta – najwyższy czas podjąć ten temat.
Ten ekskluzywny dom to projekt biura architektonicznego ONG&ONG. Głównym założeniem projektantów było wykorzystanie potencjału, jaki niosło ze sobą sąsiedztwo niesamowitej zieleni i okolicznych drzew, na które dom się otwiera, z którymi się łączy i które dopełniają go jako projekt. Zobaczcie jak zastana zieleń wpływa na odbiór budynku i zastanówcie się, czy czasami warto wykarczować całą działkę z drzew przed rozpoczęciem budowy. Zapraszam Was do inspiracji tej luksusowej rezydencji!
Zrealizowany w 2013 roku ten ekskluzywny dom jest ponadczasowy i mam wrażenie, że taka architektura nigdy się nie znudzi;] Delikatne, ażurowe deskowanie w elewacji o kierunku kontrastującym z horyzontalną formą budynku – znajdź złoty środek i nie przesadź w swoim projekcie!Niesamowity projekt nie musi posiadać niesamowitej lokalizacji aby prezentować architekturę na światowym poziomie ;]Przeszklenia – ten element już dłuższą chwilę stanowi jeden z wyznaczników nowoczesnego projektowania, Dzięki temu salon domu jest połączony z otoczeniem a ogród i taras stanowi jego przedłużenie.Zadbaj o zieleń również w tej niewielkiej formie – ona urozmaici i wzbogaci Twój projekt o naturalne aspekty. Bo nowoczesne projektowanie to projektowanie blisko natury.Ciekawe rozwiązanie przejścia nieprawdaż? Również z wykorzystaniem wody. Podobne, lecz o nieco innej formie pokazywałam Wam w poście tutaj.
Wnętrze Przechodzimy do wnętrze tego niezwykłego domu, które jest jeszcze bardziej inspirujące! Podobają mi się takie przemyślane rozwiązania, gdzie każdy element wyposażenia jest na swoim miejscu a rozwiązania materiałowe ograniczają się do dwóch, trzech materiałów we wnętrzu. Eleganckie, oszczędne, stonowane, pełne spokoju a przy tym wyjątkowo spójne i nawiązujące do całości projektu.
Zainspiruj się nie tylko wnętrzem, ale samym myśleniem o wnętrzu jako o całości!
Nowoczesny design wnętrza i elementy wyposażenia współgrające ze sobą i stanowiące całość. Salon otwarty na zewnętrze domu. Zainspiruj się!Nowoczesny design schodów i do tego to rozwiązanie materiałowe, które w luksusowych rezydencjach pojawia się bardzo często – biel poręczy i konstrukcji schodów i drewniane stopnie.W podobnym stylu, połączenia bieli i drewna we wnętrzu, urządzona jest również kuchnia. Ten design jest jednocześnie elegancki, czysty i stonowany jak i przytulny, ciepły i przyjemny – to oczywiście zastosowania naturalnego drewna.Cały budynek dzięki swojemu otwarciu na zieleń i nowoczesnym, naturalnym materiałom wykończeniowym jest bardzo… naturalny! Również łazienka, gdzie zastosowano drewno i kamień, Zwróćcie uwagę na nowoczesny, nietypowy design umywalki.Przestrzeń dzielona szkłem to przestrzeń otwarta, gdyż szkło to bardzo delikatna przegroda, która nie zaburza wnętrza.Piękna, stylowa i bardzo elegancka sypialnia – drewno, biel i ciemne elementy wyposażenia świetnie się komponują. Plus oczywiście za duże przeszklenie, które zapewnia jasne wnętrze.
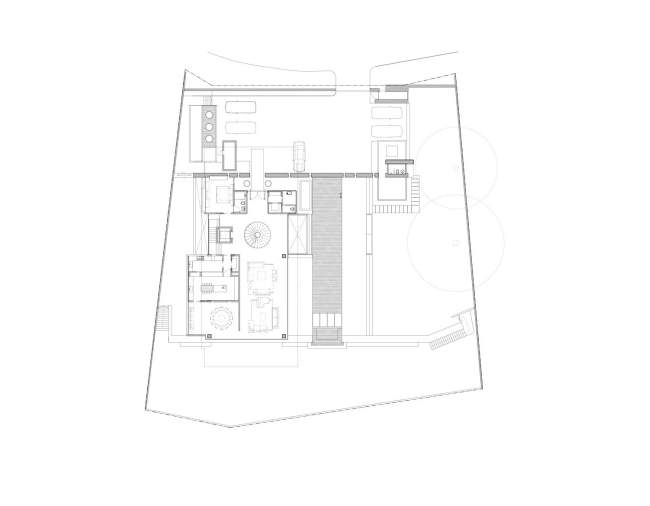
Projekt Zawsze staram się dla Was znaleźć chociaż kawałek projektu, przynajmniej te rzuty czy przekroje, żebyście mogli zobaczyć, jak tak naprawdę ta przestrzeń wygląda, jak ją zaprojektować i urządzić, aby otrzymać takie niesamowite realizacje, niezwykłe bryły, przyjemne, eleganckie i wygodne wnętrza i bardzo, bardzo spójne projekty. Zainspirujcie się i tym razem!
Piwnica.
Parter
Piętro
Przekrój
Ekskluzywny Dom 65BTP i galeria inspiracji
-zainspiruj się jeszcze bardziej!
Ten otwór to doświetlenie piwnicy – ciekawy zabieg.
Horyzontalna forma budynku.
Po prawej nietypowa rzeźba znajdująca się w ogrodzie.
Dom połączony z zielenią i wodą.
Ekskluzywny dom wieczorową porą.
Widok na ogród i nietypową, spiralną rzeźbę.
Salon otwierający się na zewnętrze domu.
Widok na nowoczesną formę schodów.
Schody okrągłe zbyt ciasne są niewygodne.
Kuchnia czyli biel i drewno.
Kuchnia w bardzo nowoczesnym, ale przyjemnym stylu.
Łazienka i ażurowa przegroda z drewna.
Co daje nam lustro we wnętrzu? O tym niedługo u PD ;]
Wejście do pokoju a w nim…
Pokój wypełniony trofeami.
Jak sami widzicie wysoka jakość tej architektury to sprawa niepodlegająca dyskusji i niezależnie od lokalizacji ten dom prezentuje architekturę na najwyższym, światowym poziomie. Niebanalne rozwiązania, niestereotypowe myślenie i zrealizowanie przestrzeni jednocześnie wygodnej i eleganckiej – mam nadzieję, że czujecie się mocno zainspirowani projektem i realizacją domu 65BTP House w Singapurze ;]
Już dziś zapraszam Was zatem na kolejny epizod, kolejny odcinek i kolejny nowoczesny, ekskluzywny dom, który niebawem pojawi się u Pani Dyrektor. Zapraszam!
Więcej informacji na temat projektowania i procedur na naszym YouTube.
Architekt o Architekturze "Zainspiruj się!" - te słowa znajdziesz w prawie każdym moim poście. Dlaczego? Lubię pokazywać, podsuwać pomysły, zadawać pytania, szukać odpowiedzi, tworzyć koncepcje, wyszukiwać nietypowe rozwiązania.
Ojoj…. to właściwie pierwszy dom, który tak wyraziście mi się nie podoba. Mówię o topowej architekturze współczesnej. Widzę jak przytłacza człowiek,a który jest przy tej niemalże kościelnej skali malutki
Takie domy-bryły jakoś nie robiły na mnie wrażenia, ale ten jest wspaniały! A wnętrze po prostu fantastyczne! Niby wykorzystano tylko kilka rodzajów materiału ale wszystko zachwyca. Bardzo podoba mi się stół zrobiony z całego pnia drzewa
Aby zapewnić jak najlepsze doświadczenia, wykorzystujemy technologie takie jak pliki cookie do przechowywania i/lub uzyskiwania dostępu do informacji o urządzeniu. Wyrażenie zgody na te technologie umożliwi nam przetwarzanie danych, takich jak zachowanie podczas przeglądania witryny lub unikalne identyfikatory. Brak zgody lub jej wycofanie może negatywnie wpłynąć na niektóre funkcje i funkcjonalności witryny.
Funkcjonalne Zawsze aktywne
Przechowywanie lub dostęp techniczny jest ściśle niezbędny do realizacji prawnie uzasadnionego celu umożliwienia korzystania ze konkretnej usługi wyraźnie zażądanej przez abonenta lub użytkownika lub wyłącznie w celu przeprowadzenia transmisji komunikatu za pośrednictwem sieci komunikacji elektronicznej.
Preferences
The technical storage or access is necessary for the legitimate purpose of storing preferences that are not requested by the subscriber or user.
Statistics
The technical storage or access that is used exclusively for statistical purposes.The technical storage or access that is used exclusively for anonymous statistical purposes. Without a subpoena, voluntary compliance on the part of your Internet Service Provider, or additional records from a third party, information stored or retrieved for this purpose alone cannot usually be used to identify you.
Marketing
The technical storage or access is required to create user profiles to send advertising, or to track the user on a website or across several websites for similar marketing purposes.
Taki dom to marzenie wielu ludzi. Wszystko jest idealnie zaprojektowane, ale koszt budowy musi być ogromny.
Ojoj…. to właściwie pierwszy dom, który tak wyraziście mi się nie podoba. Mówię o topowej architekturze współczesnej.
Widzę jak przytłacza człowiek,a który jest przy tej niemalże kościelnej skali malutki
To, w jaki sposób ludzie odbierają rozmaitą architekturę jest bardzo ciekawe ;] Różne tak samo, jak sam człowiek. Pozdrowienia!
Takie domy-bryły jakoś nie robiły na mnie wrażenia, ale ten jest wspaniały! A wnętrze po prostu fantastyczne! Niby wykorzystano tylko kilka rodzajów materiału ale wszystko zachwyca. Bardzo podoba mi się stół zrobiony z całego pnia drzewa