Luksusowa Nowoczesna Willa – Villa Midgård – Wille marzeń Ep.33

Willa marzeń? O ile większości z Was podobają się nowoczesne domy, o tyle lepiej, aby swoim designem wyglądały bardziej jak 65BTP House niż jak Bunker House ;] pewnie wynika to z tego, że nie jesteśmy przyzwyczajeni do surowych materiałów, do ich prostoty, prostoty wnętrza, tego odarcia z dekoracji i swego rodzaju ascetyzmu. Wolimy bardziej ‘cukierkowe’, przytulne, domowe wnętrza. Pewnie jest w tym sporo racji, jednak nie mogę sobie nie pozwolić na inspirowanie Was również tym pierwszym rodzajem architektury, której największe piękno tkwi właśnie w jej prostocie i niedostępności;] Zapraszam Was zatem do Villi Midgård w Szwecji – mimo, iż nie jest pewnie tą willą, którą większa część z Was wolałaby żeby była, to na pewno można powiedzieć, że jest to LUKSUSOWA NOWOCZESNA WILLA MARZEŃ – Zainspiruj się!
Luksusowa nowoczesna willa – a Ty jak ją sobie wyobrażasz?

65 BTP House VS. Bunker House

Luksusowa nowoczesna willa Midgård to projekt i realizacja biura architektonicznego DAPstockholm. Zrealizowany w 2011 roku ten nowoczesny dom jednorodzinny o powierzchni 407m2 i 3 kondygnacjach może zainspirować przede wszystkim niestandardowymi materiałami, których użyto w wykończeniu domu, nietypowymi rozwiązaniami jak okno w basenie a przede wszystkim prostotą rozwiązań i designu. Zapraszam Was do niezwykle inspirującej willi marzeń – Villa Midgård w Szwecji!
P.S. Na koniec mam dla Was niespodziankę! Szczególnie dla damskiej części czyli Czytelniczek Pani Dyrektor! Jest to w pewnym stopniu wyznacznik poziomu, który ta architektura sobą prezentuje, bo… Zresztą zobaczycie na koniec! Mogę tylko podpowiedzieć, że już raz w naszej serii taki dom, taka luksusowa nowoczesna willa marzeń się pojawiła!
Tymczasem zapraszam do posta i mnóstwa inspiracji!
Luksusowa nowoczesna willa – Villa Midgård w Szwecji




Basen Dzisiaj u Pani Dyrektor kolejny dom z efektownym, nietypowym basenem. Wcześniej opisywałam dla Was Shaw House czyli nowoczesny dom z basenem na piętrze, w którym przeszklone dno dawało podgląd na to co się dzieje w basenie. Jeżeli chcesz zobaczyć więcej – zapraszam do tego posta. My tymczasem wracamy do naszej luksusowej willi i jej nietypowego basenu, mającego okno, przeszklenie w bocznej jego części – zainspiruj się!
Bo nowoczesne projektowanie to nowoczesne rozwiązania!



Stal Corten Jeżeli chcemy mówić o nowoczesnych materiałach elewacyjnych to na pewno należy powiedzieć o Stali Corten – jest to rodzaj stali, na powierzchni której, po wystawieniu na działanie czynników atmosferycznych, pojawia się powłoka ochronna przypominająca swoim wyglądem rdzę. Pisałam dla Was kiedyś o winiarni – Navarro Correas – w której zastosowano tego rodzaju właśnie stal. Dzisiaj przykład na jej zastosowanie w budynku typu dom jednorodzinny. Taka elewacja zaczyna nabierać charakteru i wyrazu wraz z upływem czasu.
Innym pozytywnym aspektem jest fakt, że elewacja ta jest bezobsługowa – nie potrzebuje dodatkowego odświeżania i odnawiania ponieważ z roku na rok zmienia się.
Jak to powiedział jeden z Architektów DAPstockholm:
By using living materials the house will become more characteristic with age.
Zainspiruj się!


Wnętrze Jeszcze kilka zdjęć i inspiracji z wnętrza samego budynku. Dom posiada 4 sypialnie, 3 łazienki, 1 toaletę, kuchnię wraz z jadalnią, salon, SPA, salę kinową czy multimedialną, pokój dla gości, piwniczkę na wino oraz pomieszczenia techniczne obsługujące każde z 3 pięter. W końcu ten dom to ponad 400 m2 ;]
Dodatkowy plus za wykorzystanie we wnętrzu tego domu materiałów takich jak marmur, granit czy drewno orzecha, bo naturalne materiały we wnętrzu to gwarancja przytulnego, przyjemnego i jednocześnie nowoczesnego wnętrza!
Zapraszam do obejrzenia zdjęć z wnętrza tego nowoczesnego domu – nie są ‘takie straszne’ jak jego zewnętrze;] 
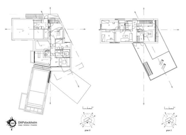
Projekt Zapraszam Was do obejrzenia rysunków technicznych tego nowoczesnego domu czyli jak wyglądają rzuty, elewacje, rozwiązania techniczne i funkcjonalne tej luksusowej rezydencji – zobacz jak wyglądał ten dom zanim jeszcze powstał w rzeczywistości! Takie inspiracje również są potrzebne – przypomnisz sobie moje słowa gdy sam zaczniesz planować swój dom, dom marzeń ;]

Niespodzianka! Villa Midgård w Szwecji stanowiła kiedyś tło i scenerię do jednej z sesji zdjęciowych najbardziej ekskluzywnego magazynu modu na świecie czyli VOGUE! Zobacz efekty tej współpracy i jak Villa Midgård wypadła w tej roli – moim zdaniem świetnie! Stanowi nowoczesne, a jednocześnie nieinwazyjne tło dla nowoczesnej i ponadczasowej kolekcji ubrań prezentowanych przez Vogue! Zainspiruj się architekturą, która inspiruje innych!

Wspominałam Wam, że już kiedyś w naszej serii ‘Wille marzeń‘ pojawił się nowoczesny dom, który miał okazję stanowić scenerię do sesji zdjęciowej ekskluzywnego magazynu modowego jakim jest Vogue. Mowa oczywiście o nowoczesnej willi projektu SAOTA czyli Clifton 2A. Tak to wyglądało w przypadku sesji zdjęciowej w tej właśnie luksusowej rezydencji!

To by było tyle na dziś u Pani Dyrektor ;]
Jak Wam się podobała luksusowa nowoczesna willa Midgård w Szwecji? ;]
Zimny? Wiem, iż jest to dom dla Was nietypowy, i surowy, i zimny,i obcy, i w ogóle jak można w takim mieszkać? ;] Spróbujcie dostrzec pozytywne aspekty takiego miejsca, dojrzeć piękno i urok tej prostoty, przemyśleć to i spróbować zainspirować się architekturą, która dla jednych obca, dla drugich jest ostoją spokoju i harmonii.
Zapraszam Was już niedługo do kolejnego odcinka z serii ‘Wille marzeń’ u Pani Dyrektor! Co tym razem przygotowała dla Was Pani Dyrektor i jakim pięknym nowoczesnym domem Was zaskoczy?;] Jedno jest pewne – będzie to architektura, którą warto się zainspirować!
P.S. – Pozdrawiam Was Inspiracjowicze późną sobotnią porą z biura i obiecuję, że już TUŻ TUŻ pokażę Wam nasze projektowanie (ach co by tylko ten czas udawał się jeszcze bardziej rozciągnąć …. :*)

















Hm
trudno od razu powiedzieć coś konkretnego o willi. w tym przypadku, na prawdę wydaje mi się, że trzeba ją zobaczyć.
wnętrza są ciepłe i przestrzenne
zewnętrze, ciekaw jestem, jak owa stal zachowuje się gdy przygrzeje słońce?
Z pewnością ściana jest warstwowa ;] Myślę, że to podobna technologia co nasza stara 3-warstwowa ;]