Luksusowe domy, wille marzeń Ep.16z20 – SAOTA po raz trzeci

Wracamy do naszej serii o nowoczesnych rezydencjach i wartych zainspirowania ekskluzywnych domach – ‘Wille marzeń’ i luksusowe domy po raz kolejny u Pani Dyrektor. Jeżeli jesteście tu po raz pierwszy zapraszam do wcześniejszych epizodów, a w nich między innymi:
- Epizod 1 – Luksusowy dom w Hollywood.
- Epizod 4 – Nowoczesny dom – Dom z widokiem.
- Epizod 8 – Dom z basenem w Izraelu.
- Epizod 12 – Rezydencja Pearl Bay.
- Epizod 13 – Luksusowa willa – Teneryfa.
Po więcej odcinków zapraszam do całej serii o nowoczesnych domach, luksusowych rezydencjach, willach marzeń. Zainspiruj się i Ty!
Teraz natomiast wracamy do naszego posta, a w nim kolejne luksusowe domy, kolejne nowoczesne rezydencje, kolejne inspiracje i pomysły!
Luksusowe domy – Nettleton 198, Kapsztad
… czyli wracamy do RPA i do biura SAOTA. Podobnie jak w tytule posta, SAOTA u Pani Dyrektor, jak i w samej serii ‘Wille marzeń’ pojawia się już po raz trzeci i… ciekawe czy ostatni ;] Chcecie zobaczyć ich pierwszy projekt u PD? Zapraszam tutaj. Drugą realizację biura SAOTA, pokazaną u PD, znajdziecie natomiast w poście Nowoczesny dom – Lake House in Geneva – Willa marzeń Ep.11z20.
Luksusowe domy, wille marzeń to przykład pięknej, ekskluzywnej architektury z różnych zakątków świata. Ten nowoczesny dom powstał na zamówienie pewnej brytyjskiej pary i tak naprawdę jest to przebudowa pewnego specyficznego budynku o dość nietypowej konstrukcji…
Zobaczcie sami jak wygląda to na przekroju domu!
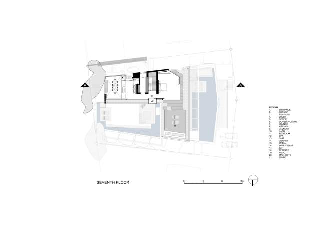
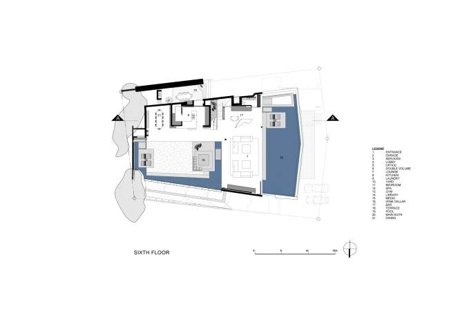
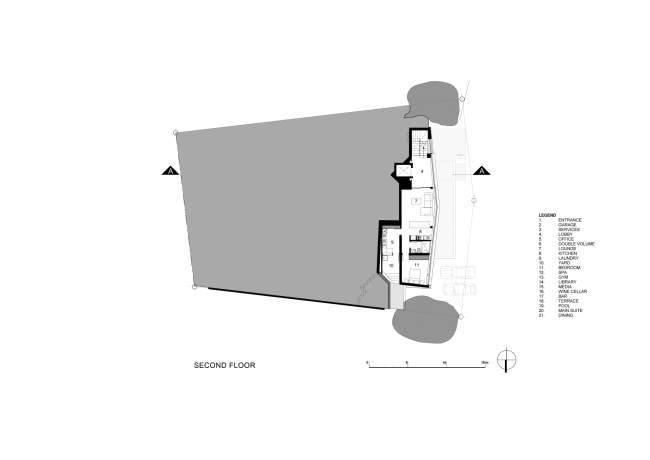
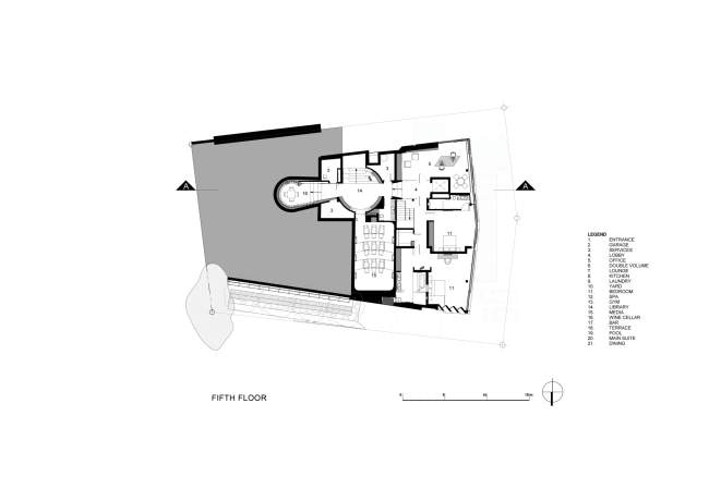
Konstrukcja – jak widzicie konstrukcja w tym przypadku to majstersztyk myśli inżynierskiej. Dom jest osadzony na skale/klifie, z jednej strony znajduje się wejście do budynku, z drugiej – widok na Ocean Atlantycki i otaczającą zatokę. Konstrukcja na najniższym poziomie została całkowicie odnowiona, górne poziomy zostały rozebrane żeby dodać kolejne, wyższe poziomy.
PrzebudowaTa niepozorna przebudowa to jedyne 1200 mkw. projektu. Budynek, jak na luksusowe domy przystało, posiada rozbudowaną funkcję zlokalizowaną na aż siedmiu piętrach mieszczących m.in. sześć sypialni, pokój multimedialny (kino), gabinet, strefę jadalną w kuchni, ‘family room’ czyli mniej oficjalny salon, reprezentacyjny pokój dzienny/salon, jadalnię, pralnię, siłownię, barek winny i bar.
UWAGA!
Dom jest dostępny na sprzedaż i kosztuje JEDYNE 8 MILIONÓW DOLARÓW ;]
Otwarty salon Salon w tej nowoczesnej rezydencji posiada szklane, przesuwne ściany, pozwalające w dowolnym momencie otworzyć wnętrze zarówno na wschodnią, jak i zachodnią stronę. Dzięki temu salon przybiera kształt otwartego pawilonu z wejściem na obszerny, stylowy taras oraz basen bez krawędzi.
Na uwagę zasługuje tutaj również niesamowite rozwiązanie strefy wejściowej, posiadającej okrągłą formę, ze ścianami wyłożonymi marmurem, drewnianą podłogą w odcieniu orzecha oraz panelami zawieszonymi nad głową, o ciekawej formie i barwie, przypominającymi swoim wyglądem wodne akwarium, bo…
luksusowe domy to luksusowe rozwiązania.
Wnętrze Poniżej zamieszczam jeszcze kilka innych zdjęć z wnętrza tej luksusowej rezydencji – zobaczcie jak spójny może i powinien być projekt!
Galeria Na sam koniec galeria rysunków technicznych, wydaje mi się, że w tym przypadku wyjątkowo ciekawa i warta oglądnięcia. Zobaczcie jak od kuchni wygląda fascynujący projekt domu na skale i jak rozwiązane są poszczególne kondygnacje, a jest ich aż osiem!
Kiedy piszę o willach które Wam pokazuję – wiem, że i w Polsce jest miejsce na podobne inwestycje. TA WILLA jest przeogromnym wyzwaniem i kosztowałaby niemało w naszych warunkach. Tak czy siak – jest to fantastyczna inwestycja – piękne wkomponowane w teren rozwiązanie funkcji. BRAWO!
PD Architekt pozdrawia Was z biura późną środą ;] Miłego!





























Witam
Dopiero niedawno trafiłam na ten blog i muszę przyznać, że mi się bardzo podoba :) lubię oglądać strony poświęcone architekturze i urządzaniu wnętrz, a już uwielbiam nowoczesną architekturę, taką jak ten dom. W ogóle ten cykl o willach marzeń bardzo mi się podoba, ale ta willa po prostu wymiata :) gdybym miała 8 milionów dolarów na pewno bym go kupiła, no ale pomarzyć zawsze można ;)
Pozdrawiam i czekam na dalsze posty o najpiękniejszych domach na świecie :)
Prawdziwa bajka i marzenie architekta ( zlecenie na wille nad morzem ) na szczęście nie moje :)
Marzenie czy zlecenie ?? ‘)