Ekskluzywna nieruchomość z basenem i panoramicznymi oknami, nowoczesny styl, aranżacje wnętrz, projekt architektury, luksusowe rozwiązania dla przestrzeni mieszkalnej.
Przed nami kolejna, OSTATNIA ekskluzywna rezydencja ;[ wiem, że jest Wam tak smutno jak mi teraz, ale wszystko co dobre szybko się kończy. Dlatego wykorzystajmy tego posta w możliwie najbardziej efektywny sposób! Przed nami potężna dawka inspiracji, pięknych zdjęć i niesamowitej architektury! Zapraszam wszystkich Inspiracjowiczów do nowoczesnej willi, willi marzeń – Hezelia Home w Izraelu!
Ekskluzywna rezydencja Hezelia Home, Izrael.
Ekskluzywna rezydencja to piękne kadry niesamowitej architektury.
Architekt Autorem projektu jest biuro architektoniczne z Tel-Awiw’u – Pitzo Kedem Architects. Ta ekskluzywna rezydencja o powierzchni ok. 600 m2 powstała w 2010 roku. Wykonany w duchu nowoczesności, dominuje w nim beton, szkło i drewno.
Jak mówi o nim sam projektant
Modernistyczny i minimalistyczny budynek, w którym zaciera się granica pomiędzy jego wnętrzem a zewnętrzem, i który ukrywa w swojej powściągliwej, wyważonej przestrzeni dramatyczną atmosferę i szeroko otwarte przestrzenie.
Od strony sąsiadów i drogi dom przybiera surową, niedostępną, betonową formę. Pamiętacie Jardin del Sol na Teneryfie?;]Nowoczesna architektura to zacieranie się granic wnętrza i zewnętrza budynku.Dom z basenem umiejscowionym we wnętrzu centralnego dziedzińca.
Nowoczesny dom został wybudowany jako dom wakacyjny dla rodziny mieszkającej za granicą. Położony jest nad wybrzeżem w centrum kraju. Na bryłę tej luksusowej willi składają się trzy części budynku, ułożone w ten sposób, aby pomiędzy nimi powstał dziedziniec wewnętrzny, w którego centrum usytuowano basen.
Pięknie rozrzeźbiona, betonowa forma odciążona dużymi połaciami szkła.Korytarz przybierający kształt zewnętrznej galerii komunikacyjnej. Betonowe nadwieszenie poprzetykane ażurowym, drewnianym wypełnieniem.Widok domu od strony podjazdu. Zwróć uwagę na wykończenie całości domu dostosowanym do formy ogrodzeniem. W nowoczesnym projektowaniu nie ma miejsca na przypadkowość.
Materiał Jak już wspominałam, głównymi materiałami wykorzystanymi do budowy i wykończenia tego nowoczesnego domu to beton, szkło i drewno. Pierwszy z nich, beton, daje poczucie odizolowania, stabilności i monumentalności. Natomiast szkło odciąża budynek i pozwala cieszyć się widokiem na morze, roztaczającym się praktycznie z każdego zakątka domu.
Drewno tymczasem zdecydowanie ociepla całość, zarówno wizualnie, jak i w bezpośrednim użytkowaniu. Połączenie ze sobą tych trzech wydaje się być rozwiązaniem idealnym. Czy jest? Przekonajcie się sami!
Dom otwiera się na otoczenie, w którym się znajduje i to w dosłowny sposób! ;]Zwróć uwagę z jaką dbałością projektowane są poszczególne elementy, detale tego budynku.Wejście na ogród.Ekskluzywna rezydencja to domy z widokiem i widoki zapierające dech w piersiach!
Wnętrze Zapraszam Was teraz do wnętrza naszej willi marzeń a w nim… Wnętrze to przestrzeń wyjątkowo wyważona, stonowana, gdzie zachowano modernistyczny umiar i powściągliwość. Ta ekskluzywna rezydencja to kwintesencja minimalizmu – na pewno nie funkcjonalnie i metrażowo, o to to nie ;] Jeżeli jednak pod uwagę weźmiemy jej design, design jej wnętrza, to to twierdzenie będzie jak najbardziej trafne.
Lekka, szklana ściana -dzięki temu korytarz nie jest ani wąski ani przytłaczający.Pamiętaj o roślinności wewnątrz Twojego nowoczesnego domu! Tutaj roślinność połączona również z wodą.Żaluzje – chronią przed nadmiarem słońca, wścibskim wzrokiem sąsiadów i na dodatek dają ciekawe efekty światłocieniowe wewnątrz budynku – same plusy ;]Ktoś pewnie powie, że za dużo betonu, szarości, że dom jest surowy, bez duszy i charakteru – a jak dla mnie jest w sam raz ;]Zwróć uwagę na ciekawe rozwiązanie oświetlenia – nowoczesne i dyskretne.Bo projektowanie to właśnie takie szczegóły, które razem wzięte tworzą spójną całość.Jeżeli doświetlenie to może świetlik?;]
Przestronny salon z dużymi oknami, minimalistycznym wystrojem i eleganckim wykończeniem, stworzony dla optycznej przestrzeni i komfortu codziennego użytkowania.
Komfortowy nowoczesny salon z dużymi oknami, zapewniający dostęp do naturalnego światła i pięknego widoku na ogród, idealny do wypoczynku.
Przestronne i stylowe wnętrze gabinetu z wygodnymi sofami, drewnianą ścianą i dużym oknem zapewniającym dostęp do naturalnego światła, tworząc atmosferę komfortu i profesjonalizmu.
Nowoczesna kuchnia w eleganckim stylu z luksusowymi wykończeniami, idealna do przestronnych wnętrz i nowoczesnych domów, z wysokiej klasy detalami i funkcjonalnością.
Komfortowy salon z panoramicznym widokiem na ogród i basen, eleganckie dekoracje, idealne do wypoczynku i spotkań biznesowych w luksusowym otoczeniu.
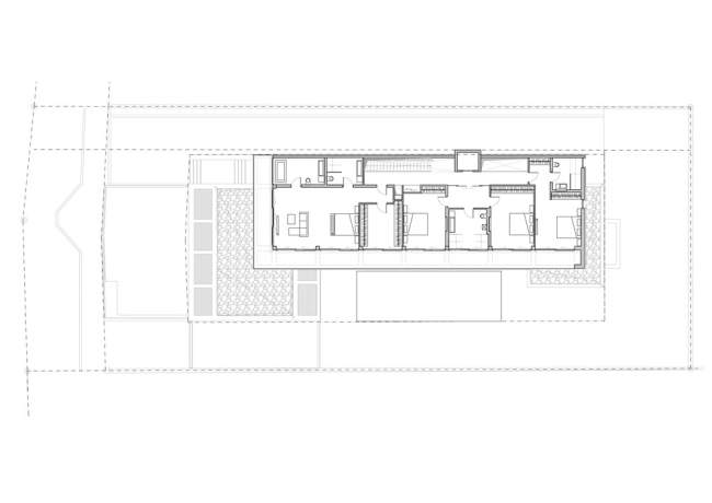
Projekt Na koniec mam dla Ciebie jeszcze rzuty i przekroje tego niesamowitego projektu – zobacz jak wygląda koncepcja i plan takiego budynku, zanim postawią cegłę na cegle (to tak w przenośni ;] nasz budynek jak wiemy nie jest ceglany;]).
Parter budynku.
Pierwsza kondygnacja.
Przekrój budynku.
Ekskluzywna rezydencja i jeszcze więcej inspiracji! Zobacz jak wygląda ta ekskluzywna rezydencja i zainspiruj się piękną, nowoczesną architekturą i indywidualnym, skrojonym na miarę potrzeb Inwestora, unikatowym projektowaniem!
Przestronny balkon na wysokim piętrze z drewnianą podłogą i panoramicznym widokiem na morze, idealny do odpoczynku i relaksu w otoczeniu natury.
Przytulne i eleganckie lobby hotelowe z wysokiej jakości meblami i minimalistycznym stylem, idealne do relaksu po podróży, z spokojnym klimatem.
Luksusowa rezydencja z basenem i tarasem, nowoczesna architektura, elegancki i przestronny dom dla wymagających klientów.
Nowoczesny budynek biurowy z dużymi przeszkleniami i eleganckim designem, oświetlony wieczorem, doskonały dla firm i instytucji, wysokiej klasy architektura, przestrzeń do pracy i rozwoju.
Luksusowa willa z basenem, nowoczesny design, wykończenia wysokiej klasy, taras i eleganckie przestrzenie ogrodowe, idealne do relaksu i rozrywki, elementy architektury premium.
Przestronne nowoczesne wnętrze domu z panoramicznymi oknami i barem, luksusowe styl życia, eleganckie wykończenia i funkcjonalność dla dbałości o komfort mieszkańców.
Wysoki standard nowoczesnej architektury domu z dużymi oknami, basenem i eleganckim wnętrzem, doskonałe rozwiązanie dla wymagających klientów poszukujących luksusowego domu w stylu minimalistycznym.
Elegant house with swimming pool, modern architecture, minimalist design, luxury interiors, private fencing, terrace views, luxury property inspiration, Panidyrektor.pl, dream home visuals.
Za niedługo przygotuję dla Was podsumowanie naszej serii o nowoczesnych domach, serii WILLE MARZEŃ. Z tego względu, że domów tych było aż 20, to żeby Was nie przytłaczać moi Drodzy Czytelnicy, podsumowanie podzielone zostanie na dwie części – po 10 pięknych, nowoczesnych domów w każdym. Jak podoba się Wam taki pomysł?;]
Tymczasem zapraszam do pozostałych postów u Pani Dyrektor – czytajcie, oglądajcie i inspirujcie się!
Wiedza z zakresu projektowania domów i procedur urzędowych czeka na ciebie na naszym kanale na YouTube.
Architekt o Architekturze "Zainspiruj się!" - te słowa znajdziesz w prawie każdym moim poście. Dlaczego? Lubię pokazywać, podsuwać pomysły, zadawać pytania, szukać odpowiedzi, tworzyć koncepcje, wyszukiwać nietypowe rozwiązania.
Aby zapewnić jak najlepsze doświadczenia, wykorzystujemy technologie takie jak pliki cookie do przechowywania i/lub uzyskiwania dostępu do informacji o urządzeniu. Wyrażenie zgody na te technologie umożliwi nam przetwarzanie danych, takich jak zachowanie podczas przeglądania witryny lub unikalne identyfikatory. Brak zgody lub jej wycofanie może negatywnie wpłynąć na niektóre funkcje i funkcjonalności witryny.
Funkcjonalne Zawsze aktywne
Przechowywanie lub dostęp techniczny jest ściśle niezbędny do realizacji prawnie uzasadnionego celu umożliwienia korzystania ze konkretnej usługi wyraźnie zażądanej przez abonenta lub użytkownika lub wyłącznie w celu przeprowadzenia transmisji komunikatu za pośrednictwem sieci komunikacji elektronicznej.
Preferences
The technical storage or access is necessary for the legitimate purpose of storing preferences that are not requested by the subscriber or user.
Statistics
The technical storage or access that is used exclusively for statistical purposes.The technical storage or access that is used exclusively for anonymous statistical purposes. Without a subpoena, voluntary compliance on the part of your Internet Service Provider, or additional records from a third party, information stored or retrieved for this purpose alone cannot usually be used to identify you.
Marketing
The technical storage or access is required to create user profiles to send advertising, or to track the user on a website or across several websites for similar marketing purposes.
Przepiękny dom!