Luksusowa willa marzeń Ep.31 – Dom w Monasterios, Hiszpania
Zapraszam Was po raz kolejny do obejrzenia inspiracji niesamowitego domu, tym razem prosto ze słonecznej Hiszpanii! Ostatnio pisałam dla Was o Bunker House, który jest niezwykłym przykładem na to, że nowoczesny dom, mimo iż surowy w swojej formie, może stanowić przykład niezwykłej architektury! Dzisiaj dom równie piękny, można by rzec luksusowa willa marzeń ;] Zobaczcie jak wygląda ta niezwykła rezydencja a zarazem kolejny, 31 już! odcinek z naszej serii o nowoczesnym projektowaniu, niesamowitych luksusowych rezydencjach i pięknych domach z całego świata – seria ‘Wille marzeń’ – zainspiruj się!
Przenosimy się zatem do gorącej Hiszpanii i niezwykłego domu – House in Monasterios – zapraszam Was do intensywnej inspiracji, pięknych zdjęć i niesamowitej architektury!
Zaprojektowany w 2008 roku ten nowoczesny dom ma powierzchnię ponad 1400 m2! Przekłada się to w jego wnętrzu na piękne, otwarte przestrzenie i lekkość formy, w niczym nie ograniczoną. Zobaczcie sami!
Luksusowa willa marzeń czyli Dom w Monasterios

Światło Zawsze powtarzam Wam, że odpowiednio zaprojektowany budynek taki budynek, który efektownie wygląda zarówno za dnia, jak i nocą. W tym drugim wypadku niezbędna jest odpowiednia iluminacja obiektu i podkreślenie jego walorów za pomocą sztucznego oświetlenia. W domu w Monasterios oświetlenie budynku jest po prostu mistrzowskie – nie dość, że dom odbija siebie i światło w wodzie, to ponadto światło świetnie uwypukla fakturę poszczególnych materiałów zastosowanych w budynku: drewna, szkła i niesamowitego kamienia.

Patio Zwarta forma budynku została urozmaicona poprzez wprowadzenie do centrum budynku wewnętrznego dziedzińca, otwartego patio, w którym zaprojektowano niewielką zieleń. I jeszcze nie byłoby w tym nic dziwnego gdyby nie fakt, że są to TRZY PATIA przechodzące jedno w drugie i dzielące dom na strefę dzienną i nocną. W patio zastosowano przede wszystkim takie materiały jak kamień, drewno i szkło, które świetnie ze sobą współgrają i tworzą harmonijne wnętrze.
Zobacz sam i zainspiruj się!



Architektem tej niezwykłej, nowoczesnej i bardzo luksusowej rezydencji jest Ramon Esteve. Wraz ze swoim zespołem stworzył budynek o świetnych proporcjach, lekkiej swobodnej formie i indywidualnym wyrazie. Zwróćcie uwagę na to, jak prosty w wyrazie a jednocześnie bardzo indywidualny jest ten projekt! Zgodnie z założeniami odpowiada na główne potrzeby Inwestorów. Jakie to były potrzeby?
Dom został zaprojektowany w ten sposób, aby uwzględniając różne wysokości pomieszczeń i głównych ścian, ukierunkować go w jedną stronę – w stronę morza, na który z domu roztacza się piękny widok.
Spodziewalibyście się tego? Na zdjęciach nie widać przecież gdzie usytuowany jest dom. Jest on zlokalizowany na wzgórzu, na wzniesieniu, z którego w jedną stronę rozciąga się piękny widok na morze. Cieszy mnie to, że na zdjęciach nie zostało to pokazane, gdyż świetna architektura nie wykorzystuje tego aspektu jako dodatkowego pozytywu, gdyż go po prostu nie potrzebuje ;]
Ta luksusowa willa marzeń świetnie sprawdziłaby się i efektownie wyglądała w każdej lokalizacji! ;]


Ta luksusowa willa marzeń zaprojektowana została z dbałością o szczegóły i przy wykorzystaniu głównie naturalnych materiałów. Jest to widoczne w każdym aspekcie tego projektu: przez jego formę zewnętrzną, w projekcie patio, tarasu czy skończywszy na designie wnętrza.
Ogród Zobaczcie jak wygląda tył domu, czyli tzw. część ogrodowa, z zaprojektowanym bezpośrednio przy domu tarasem, drewnianym podejściem wokół basenu i samym basenem. Bezpośrednio przy domu zaprojektowano taras podzielony na mniejsze wnętrza według kierunku kamiennych ścian i w sumie przez te ściany zdeterminowany. Niewielkie otwory odciążają ściany i jednocześnie pozwalają na wgląd do sąsiednich części tarasu.


Wnętrze Układ funkcjonalny zdeterminowany jest przez konstrukcję budynku oraz tym samym układ ścian. Jest prosty w formie i wyrazie. Projekt wnętrza tego nowoczesnego domu niejako odzwierciedla jego główne założenia: oszczędny design, lekka forma, wszystko bardzo proste i zrównoważone. To wnętrze niczym nas nie zaskoczy, no chyba tylko tym, w jak dużym stopniu jest wnętrzem zaplanowanym, przemyślanym i indywidualnym ;]
Zresztą zobaczcie sami!
Luksusowa willa marzeń – dom w Monasterios i jego niezwykłe wnętrze!




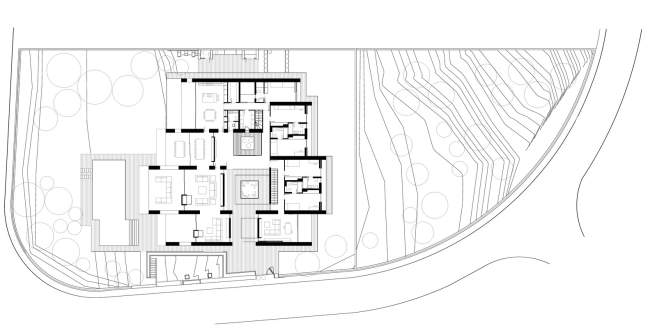
Rysunki techniczne – tutaj zobaczysz jak projekt wygląda od kuchni, jak wygląda zanim jeszcze powstanie i jak domy widza projektanci ;] od pierwszego szkicu pierwszej koncepcji, przez liczne modyfikacje, po ostateczny wyraz widoczny na rzucie, który pokazuje nie tylko układ funkcjonalny budynku, ale również jego usytuowanie na działce oraz schemat konstrukcji. Zainspiruj się niezwykłymi rysunkami technicznymi i zobacz jak wyglądała ta niezwykła luksusowa willa marzeń zanim jeszcze powstała – Dom w Monasterios!
A jakie potrzeby Wy macie? Nie zapomnijcie porozmawiać o nich ze swoim Architektem w trakcie konsultowania projektu, mogą mieć one znaczny wpływ na jego rozwój i finalną formę domu ;]
Projekt = decyzja Jeżeli nie wiecie od czego zacząć projektowanie domu zapraszam Was do 3 wpisów, które powstały właśnie po to, żeby Wam ten proces ułatwić, żeby uzmysłowić Wam, że każda decyzja jaką podejmiecie będzie miała wpływ na projekt i niesie za sobą konkretne konsekwencje.
- Jak wybrać, zaprojektować, rozplanować dom swoich marzeń Ep.1 Dom z Rzutu
- Jak wybrać, zaprojektować, rozplanować dom swoich marzeń Ep. 2 Funkcja
- Projekt domu indywidualnego czy projekt domu typowego co wybrać Ep.3
Zapraszam Was do zaglądnięcia do nich – być może pomogą Wam one w podjęciu kilku kluczowych decyzji i uzmysłowią, na co tak naprawdę zwrócić uwagę planując swój dom.
Mam nadzieję, że czujecie się mocno zainspirowani i już nie możecie się doczekać kolejnego odcinka o najpiękniejszych domach świata – zapraszam Was już niedługo!
Majówka już rozpoczęta, więc PD Architekt pozdrawia Was bardzo gorąco i ma nadzieję, że inspirujecie się równie intensywnie w czasie Majówki, co w zwykłe dni ;] ( Choć pogoda nam nie dopisuje – przynajmniej jest dobra inspiracja! )
















