Willa marzeń Ep.12z20 – Pearl Bay Residence

Przed nami kolejna luksusowa willa czyli następny post z serii ‘Willa marzeń’. Odnoszę nieodparte wrażenie, że to obok amerykańskich domów jedna z Waszych ulubionych serii. Mam rację?;] w takim razie przenosimy się dzisiaj do Południowej Afryki i miasta, o dość specyficznej nazwie Yzerfontein, położonego o 90 km na północ od Kapsztadu, nad brzegiem Oceanu Atlantyckiego.
Willa marzeń – nowoczesny dom z Pearl Bay Residence.

Budynekpołożony nad samym oceanem wśród niskiej, ale pięknej roślinności wyłania się z brzegu jak prawdziwa perełka architektury. Za projekt odpowiedzialne jest biuro Gavin Maddock Design Studio.
Projektprowadzony w minimalistycznym stylu, wręcz modernistycznym. Skąd w Inwestorach takie zamiłowanie do projektów i rezydencji prowadzonych w tym nurcie? Nie wiem. Wiem natomiast, że projekty te są spójne, są realizowane całościowo, są przemyślane, są po prostu piękne.
BudżetWiększość osób, widząc taki budynek zakłada, że kosztował on fortunę. Natomiast w tym projekcie jednym z założeń projektowych był ograniczony budżet, co spowodowało pewną oszczędność w wyborze niektórych rozwiązań.
W zamyśle budynek ten miał być domem sezonowym, w pewnym sensie letniskowym, jednak z możliwością zamieszkania na stałe w momencie, gdy Inwestorka zakończy pracę i odejdzie na zasłużoną emeryturę. Wtedy w pełni będzie mogła nacieszyć się funkcjonalnym, nowoczesnym domem z pięknym widokiem na ocean.
Budynek położony jest na wydmie. Ważnym aspektem w takim wypadku jest sprawdzenie nośności gruntu. Myślisz, że jeżeli Ty nie budujesz na wydmie/klifie/itp. Tobie takie badania geologiczne nie są potrzebne? Możesz się mylić. Sprawdź dlaczego.
Willa o powierzchni 600 mkw. zawiera: trzy sypialnie, cztery łazienki, przestrzeń jadalnianą i salon zarówno we wnętrzu, jak i na zewnątrz budynku, pasaż-galerię, swobodną przestrzeń wypoczynku (czyli coś jak salon, ale w nieoficjalnym wydaniu;]), studio, tarasy i balkony. Trochę tego jest. Jednak jest to przestrzeń uporządkowana, z wydzielonymi osobno strefami prywatnymi, dziennymi i nocnymi, strefą reprezentacyjną dla gości. W takim projekcie wszystko ma swoje miejsce i jest miejsce na wszystko ;]
Najciekawsze jest to, że przy takiej ilości pomieszczeń, każde z nich posiada widok na ocean!
STREFA REPREZENTACYJNA – salon, kuchnia, jadalnia
STREFA PRYWATNA – sypialnie, łazienki
Nowoczesny domzostał zaprojektowany jako dwukondygnacyjny budynek składający się z dwóch osobnych pawilonów połączonych jednokondygnacyjną galerią o horyzontalnym układzie.
Detal, bo nowoczesne projektowanie to projektowanie na miarę potrzeb. Tutaj każdy detal, każdy użyty materiał jest starannie przemyślany i przekalkulowany. To również jest wyznacznik nowoczesnego projektowania. Chcesz wiedzieć co jeszcze sprawia, że dom jest nowoczesny? Zapraszam do postów:
- Pomysł na Nowoczesny dom Ep.3 – Jaki jest, czym nie jest, co go wyróżnia?
- Nowoczesne wnętrze. Co to jest i czym się różni od wnętrza “standardowego”.
- Nowoczesna elewacja lub pomysły na renowację starej elewacji.
tam wspomniałam co nieco o niektórych wyznacznikach nowoczesności. Jeżeli nie wiesz – sprawdź!
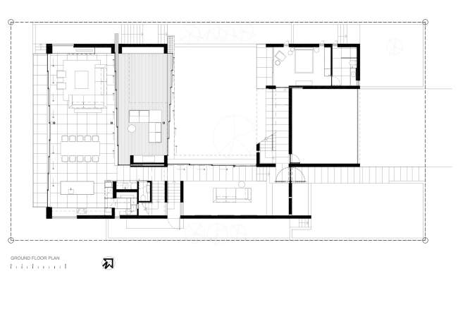
Rzut Chcecie zobaczyć jak wygląda rzut takiego budynku? Zerknijcie poniżej. W galerii znajdziecie rzut zarówno parteru, jak i piętra. Tak właśnie wygląda luksusowa willa zanim jeszcze zostanie wykopany pierwszy kamień pod fundament ;]
Właśnie zdałam sobie sprawę, że opisywana przeze mnie willa Pearl Bay Residence to już trzecia położna w RPA! Dwie wcześniejsze to:
- Willa marzeń Ep4z20 – Nowoczesny dom, luksusowa rezydencja – Dom z widokiem.
- Luksusowa rezydencja Cove 3 House w RPA – Willa marzeń Ep.7z20
PD Architekt pozdrawia Was z biura w Rzeszowie i ma nadzieję, że już wkrótce znajdzie chwilę na powiększenie biurowego portfolio o te kilkadziesiąt domów, które zrealizowaliśmy dla Was w roku 2015 ;]
























