Historycznie EP.1 – małe domy Ameryki lat 20
W cyklu postów o historycznych budynkach Pani Dyrektor pragnie Cię zainspirować projektami domów z dawnych lat , które są ekonomiczne i odpowiednie na mały budżet. Mały, ekonomiczny, amerykański tani domek z lat 20 – czemu nie? Oczywiście, poniższe plany trzeba zaadoptować do współczesnych polskich realiów, ale mimo tego, mogą być pomysłową inspiracją na ekonomiczny dom w dawnym stylu.
P.S. We wpisie umieściłam dla Was odnośniki do poszczególnych postów traktujących o pomieszczeniach czy elementach domu amerykańskiego z mojej nowej serii ‘Amerykański Dom i Wnętrze’. Jeżeli chcesz się dowiedzieć czegoś więcej na dany temat – kliknij w odnośnik ;]
Małe domy Ameryki lat 20 – zobacz jak wyglądały!

“Adrian” to typowy, 6-pokojowy dworek wiejski w stylu angielskim. Jest to jeden z najpopularniejszych projektów, który cechują niskie fundamenty i ściany pokryte gontem oraz dość duży komin i ganek z cegły.
Wnętrze domu jest zaprojektowane tak, aby zapewnić mieszkańcom jak największy komfort.
Z jednej strony dużego wejścia znajduje się jadalnia, a naprzeciwko jest duży salon z ciekawym kominkiem pośrodku, wbudowaną szafką na książki oraz drzwiami prowadzącymi na betonowy taras.
Na parterze jest jeden pokój z łazienką oraz kuchnia. Na I piętrze znajdują się 2 pokoje dla mieszkańców wraz z drugą łazienką.
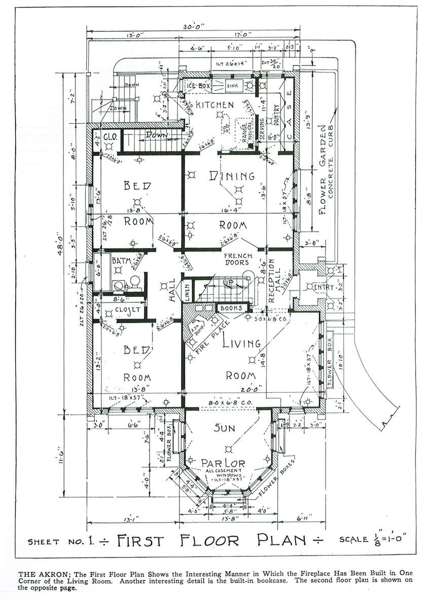
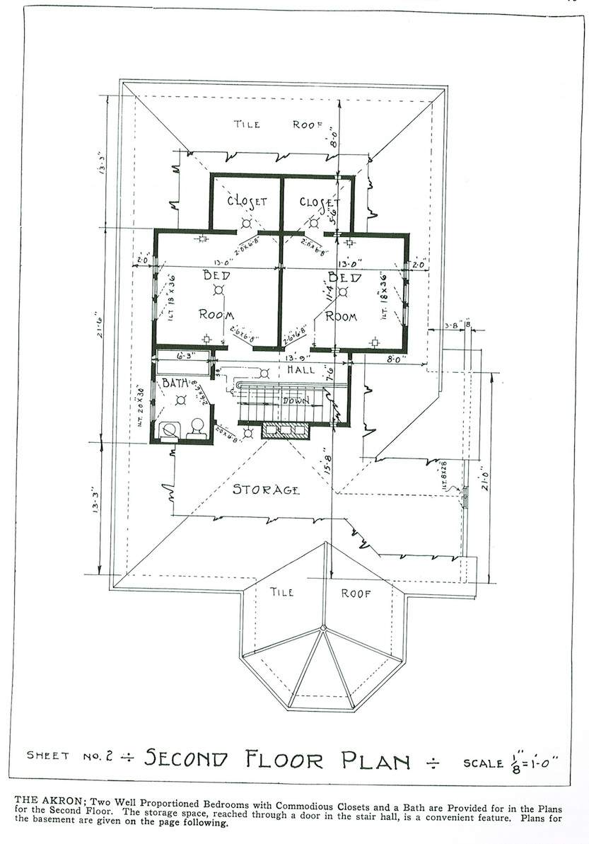
“Akron” to kolejny projekt inspirowany angielskim stylem wiejskiej chaty, który jest zbudowany z popularnych kiedyś w Anglii materiałów: cegły, drewna i stiuku, szyli tynku szlachetnego.
Na zdjęciu wygląda jak typowy amerykański “Christmas House” :)

Okna są ładnie zgrupowane, a sposób ich ułożenia i długie parapety sprawiają wrażenie przytulnego domku.
Wejście jest ciekawie zbudowane – ukryte pod łukiem, ze zwornikiem z białego kamienia i przyjaznymi latarenkami.
Wnętrze domu zostało tak zaprojektowane, aby spełnić oczekiwania każdej amerykańskiej rodziny, szczególnie takiej, która posiada dzieci i osoby starsze – pokoje na parterze będą dla nich dużą wygodą.
“Camilla” Wejście prowadzi bezpośrednio na drugie piętro. Po lewej stronie, hol łączy się z salonem z uroczym kominkiem w rogu. Słoneczna bawialnia jest wyposażona w okna kwaterowe, które zapewniają więcej słońca i są dobrym dodatkiem do salonu. Jadalnia jest oddzielona od holu poprzez drzwi francuskie .
Ułożenie kuchni jest bardzo praktyczne, ponieważ można wejść do jadalni prosto z kuchni lub spiżarni. Pokoje na parterze są oddzielone od pozostałych pomieszczeń, a między nimi znajduje się łazienka. Natomiast pokoje na pierwszym piętrze są wyposażone w duże garderoby i okna kwaterowe.

Ilustrowane książki z planami domów były bardzo popularne w Ameryce już w XVIII w., jednak największą popularność przeżywały od połowy XIX w. Przedstawiano w nich projekty domów dla klasy średniej i nawet klasy wyższej indywidualnych architektów lub firm, które dostarczały również tanie materiały budowlane, które można było zamówić wraz z planami. Projekty pochodzą z książki Williama A. Radforda „The most popular homes of the Twenties”, która jest współczesnym przedrukiem z książki wydanej w 1925.
W tej książce nie znajdziesz nazw firm czy też architektów, lecz plany i rysunki są tak dobrze i szczegółowo wykonane, że są wystarczające do zbudowania danego domu.
Zobacz także inne pomysły na małe domy Ameryki
Celem tej książki i dzisiejszego postu Pani Dyrektor jest zainspirowanie Cię do zbudowania domu – pięknego, małego domku na miarę Twoich potrzeb i możliwości finansowych.
Zobacz koniecznie inne odcinki o amerykańskich i ekonomicznych domach:
Amerykańskie Domy Podmiejskie – Czy Mogą Być Inspiracją?
Mały Tani Domek EP. 1 – Skandynawski Dom – Kiedy Mamy Mały Budżet
Mały Tani Domek EP. 2 – Mały Słodki Domek
Mały Tani Domek EP. 3 – Pomysł Wprost z Japonii
Mały Tani Domek EP. 4 – Skansen w Sanoku
Mały Tani Domek EP. 5 – Eco Dom z Płyty Warstwowej





















